Виды котлов
Самодельные отопительные котлы принято классифицировать в зависимости от того, какое в них используют топливо. Дровяной котел наиболее востребован для самостоятельной сборки из-за своей простой конструкции, доступности материалов и инструментов, нужных для его изготовления. Кроме того, дрова — это довольно недорогое топливо, и купить их в нужном объеме можно практически в любом регионе. К достоинствам дровяного котла относят универсальность и простоту, к недостаткам — довольно низкий КПД.
Самый простой вариант такого агрегата выглядит следующим образом: трубка, которая выполняет роль топки, вставляется внутрь другой трубки (большего диаметра) с толстыми стенками. Полость между ними заполняется водой. Отметим, что дровяные котлы можно спокойно топить и другими видами твердого топлива, а именно: углем, торфяными брикетами.
Пиролизный котел более эффективен, чем дровяной, хотя работает на том же топливе — древесине. Дело в том, что, если сжигать дерево с нехваткой кислорода при температуре от +200 до +800 градусов, то оно распадется на два элемента: пиролизный газ и древесный кокс. Если к газу добавить кислород, то произойдет воспламенение с интенсивным выделением тепла.
Таким образом можно повысить КПД самодельного котла до 92%. Порция дров, которая горит в дровяном котле 4 часа, будет отдавать теплоэнергию в пиролизном котле в 3 раза дольше. Преимуществами такой конструкции можно назвать отсутствие твердых остатков после горения и возможность регулировки горения газов в автоматическом режиме.
Есть у этой разновидности отопительных агрегатов и недостатки: важно соблюдать требования к влажности дров (не более 30%), а материалы для изготовления такой печи обойдутся намного дороже, чем для дровяного аналога. Правда, стоимость котла должна окупиться довольно быстро
В котлах, работающих на отработанном масле, можно использовать и солярку в качестве топлива. Принцип их работы следующий: масло капает на раскаленный поддон и испаряется, трансформируясь в газы, а те, сгорая, подогревают теплоноситель.
Электрические котлы состоят из ТЭНа, помещенного внутрь трубки. Трубка стоит вертикально. Сверху к ней подведена подача, а снизу — обратка. Вода циркулирует естественным образом. У такой конструкции есть очевидный минус — котел нельзя подключать в сеть с напряжением 220 В, а 380 В можно найти далеко не везде.
Разновидности и выбор конструкции твердотопливного котла
Печи и котлы нагрева различаются по своим функциональным возможностям. Печь необходима для прогрева помещения, а котел еще должен прогревать теплоноситель, который транспортируется по сети отопления в доме
Поэтому важно продумать непрерывность процесса горения топлива, обеспечить равномерную циркуляцию воды по теплообменнику

Различаются котлы отопления самодельные по способу горения – верхнему (шахтному) или нижнему:
- Твердотопливный котел с нижним горением – агрегат, в котором дверца камеры загрузки находится в верхней части камеры сгорания, сами дрова горят внизу. Такая система обеспечивает продолжительность горения топлива – нижние слои сгорают, верхние постепенно опускаются вниз под собственным весом. Циркуляция воздуха осуществляется снизу вверх при установке насоса (принудительная) или естественным путем. Второй вариант тяги удобнее, поскольку не требует подключения оборудования к сети питания, что обуславливает полную автономность системы.
- Котлы с верхней или шахтной загрузкой – агрегаты, в которых дверца топочной располагается в верхнем отделе камеры сгорания. Устройства всегда оснащаются принудительной тягой для перемещения воздуха сверху вниз. В этом случае дым перегоняется в нижний отсек топочной камеры, смешивается с воздухом, сгорает, передает тепловую энергию топливу в нижних ярусах – особенно удобно при закладке сырых дров, за счет тепла они подсушиваются и горят лучше.
Для самостоятельной сборки лучше подходят агрегаты с нижним вариантом горения, встраивание вентилятора тут не нужно.
Еще различаются агрегаты по способу горения, они могут работать в обычном режиме или с выходом на пиролиз. Пиролизом называется процесс разложения энергоносителя на составляющие с последующим сжиганием элементов. Для сборки моделей с пиролизным горением придется оборудовать вторую камеру сгорания, габариты прибора будут больше, увеличится расход материалов.
Температура горения угля выше, чем у дров, поэтому если формируется твердотопливный прибор под горение угля, колосники должны быть чугунными, корпус и теплообменник – из стали большой толщины. Допустимо делать корпус котла из огнеупорного кирпича.
После оценки собственных умений, просмотра схем нагревателей, выбирается определенная модель прибора. Если опыта достаточно, мастер сможет соорудить самодельный газовый котел для отопления частного дома, новичкам же стоит отдать предпочтение самым простым устройствам. При соблюдении техники сборки и монтажа тепла в доме будет достаточно от примитивного твердотопливного котла с водяным контуром отопления.
Устройство и принцип работы
В основе принципа длительного горения лежит снижение скорости сгорания топлива за счет уменьшения подачи воздуха. Кислород в первичную камеру сгорания подается в количестве, достаточном для тления, но не обеспечивающем интенсивное горение.
Во время медленного окисления древесины выделяются газообразные углеводороды, получившие название пиролизных газов. Сам процесс органического разложения древесных волокон под действием высокой температуры называется приролизом.
Дожигание продуктов окисления во вторичной камере на длительность горения топливной закладки не оказывает существенного влияния, однако существенно увеличивает общую эффективность работы котла на дровах. Это связано с тем, что при сгорании вторичных газов выделяется значительно больше тепловой энергии чем при интенсивном горении дров.
Энергозависимые установки длительного горения
Компоновка дровяных котлов длительного горения предполагает расположение основной топочной камеры непосредственно над зоной сжигания вторичных газов, а сообщение между ними осуществляется через специальные керамические форсунки, способные работать при температуре от 800 до 1000 С. Днище главного топливного отсека оборудовано специальной термостойкой постелью, чаще всего из шамотного кирпича или керамобетонных блоков.
Направленное движение воздуха (тяга) обеспечивается с помощью нагнетающего вентилятора, от частоты вращения которого зависит количество кислорода в рабочей зоне. На основании данных, полученных от температурного датчика, автоматическая система управления (АСУ) может увеличивать или уменьшать угловую скорость крыльчатки. К достоинствам такой схемы можно отнести высокую точность регулировки. Кроме этого, воздух, проходя через верхний топочный бункер, нагревается, что упрощает процесс воспламенения пиролизных углеводородов.
Интенсивность циркуляции теплоносителя в отопительном контуре регулируется насосом, который также подключается к АСУ. Если температура теплоносителя снижается, автоматически увеличивается подача воздуха.
Точность регулировки и экономичность энергозависимых дровяных котлов отопления длительного горения обеспечивают значительную экономию дров, что за весь отопительный сезон выливается значительную сумму. Однако не следует сбрасывать со счетов тот факт, что при отсутствии электропитания, такой котел становится бесполезной грудой металлолома, поскольку естественная тяга в таких конструкциях, как правило, не предусматривается.
Энергонезависимые дровяные котлы длительного горения
Несмотря на то что экономичность и производительность таких установок заметно ниже, чем установок оснащенных АСУ, они совершенно не зависят от наличия электроэнергии, что является их существенным плюсом. К недостаткам таких систем относится, прежде всего, сложность настройки.
У такого котла на дровах регулировка подачи кислорода производится открытием специальной заслонки, имеющей кинематическую связь с биметаллическим терморегулятором, расположенным на верхней крышке изделия.
После розжига дровяной закладки и получения устойчивого горения заслонку приводят в рабочее положение, уменьшая тем самым количество воздуха в первичной камере сгорания и обеспечивая оптимальные условия для химико-термического окисления древесного горючего. Горячие пиролизные газы, под действием естественной тяги, поступают в верхнюю камеру сгорания, где смешиваются с разогретым вторичным воздухом, вследствие чего воспламеняются.
Циркулирующий в водяной рубашке теплоноситель быстро нагревается за счет контакта с горячими стенками камеры сгорания. Высокую производительность таких конструкций обеспечивает большая площадь теплообменника.
Отопительные котлы на дровах обратного горения
Главной особенностью таких устройств является то, что процесс первичного сжигания происходит в направлении от верхних слоев к нижним.
Конструкция представляет собой вертикально расположенный цилиндр со штоком и прижимным диском, обеспечивающим равномерное распределение воздуха по всей поверхности горения.
Образовавшиеся в результате пиролиза газы поступают в верхнюю часть корпуса, где смешиваются с предварительно разогретым вторичным воздухом и воспламеняются. Раскаленная боковая поверхность непосредственно контактирует с теплоносителем, поступающим в контур отопления через выходной патрубок. Для большей эффективности, прибор может быть установлен в защитный кожух, а образовавшаяся полость заполнена пенополиуретаном или другим негорючим теплоизолятором.
Фото котлов своими руками







































Также рекомендуем просмотреть:
- Вентилятор своими руками
- Прикормка своими руками
- Откатные ворота своими руками
- Ремонт компьютера своими руками
- Станок по дереву своими руками
- Столешница своими руками
- Брусья своими руками
- Лампа своими руками
- Установка кондиционера своими руками
- Отопление своими руками
- Фильтр для воды своими руками
- Как сделать нож своими руками
- Усилитель сигнала своими руками
- Ремонт телевизора своими руками
- Зарядное для аккумулятора своими руками
- Точечная сварка своими руками
- Дымогенератор своими руками
- Металлоискатель своими руками
- Ремонт стиральных машин своими руками
- Ремонт холодильника своими руками
- Антенна своими руками
- Ремонт велосипеда своими руками
- Сварочный аппарат своими руками
- Холодная ковка своими руками
- Трубогиб своими руками
- Дымоход своими руками
- Заземление своими руками
- Стеллаж своими руками
- Блок питания своими руками
- Светильник своими руками
- Жалюзи своими руками
- Светодиодная лента своими руками
- Нивелир своими руками
- Замена ремня ГРМ своими руками
- Лодка своими руками
- Как сделать насос своими руками
- Компрессор своими руками
- Усилитель звука своими руками
- Аквариум своими руками
- Сверлильный станок своими руками
Помогите проекту, раскажите друзьям:
Достоинства двухконтурного отопления
Двухконтурным называется тот вид отопления, при котором с помощью котла происходит нагрев воды специально для использования ее в быту и для отопления всего помещения. Таким образом, всю потребность горячей воды обеспечивает один двухконтурный котел. Есть и другие причины, по которым он набирает все большую популярность :
- Дает возможность не зависеть от коммунальных хозяйств и позволяет самим регулировать отопление, тем самым создавая комфорт дома
- Возможность установки в любой части дома. так как не требуется дополнительная система вытяжки, вентиляция также не требуется
- Кроме самого котла Вам ничего не понадобится, ведь все необходимое для отопления и снабжения дома горячей водой в течении длительного времени уже будет встроено
- Выгодная и доступная цена
Как работает дровяная печь с водяным контуром Выбираем печи-камины для дачи с водяным контуром и теплообменником Кирпичная печь с водяным контуром Печь с водяным контуром на отработке – как сделать своими руками.
Предметы мебели
Несколько примеров меблировки кухни, объединенной с гостиной:
- 1. Диван. Он становится предметом, который зонирует пространство. Диван ставят спинкой к тому месту, где готовят еду. В небольшие комнаты (менее 20 кв м) ставят уголок, который располагают у стены, установленной перпендикулярно или параллельно от кухни.
- 2. Гарнитур. По мнению дизайнеров, минималистичные модели без вычурных деталей смотрятся современно. Сервиз, вазы или бокалы ставят на открытой полке. Для них можно купить модную витрину. Мебель ставят возле стены. Если пространство большое (20 кв м, 25 кв м или 30 кв м), то в центральной части можно установить остров, в котором есть и отделы для кухонных приборов.
- 3. Комплект мебели. Стиль должен сочетаться с оформлением обеих комнат. В малогабаритных помещениях хорошо смотрится компактный столик и стулья, сделанные в из прозрачного материала или окрашенные в светлые цвета. В интерьер гостиной можно поставить стол с круглой столешницей. В просторных помещениях комплект устанавливают возле стенки или в центральной части. Здесь будет хорошо смотреться вытянутый обеденный стол прямоугольной формы.
Сборка отопительного агрегата
В первую очередь к блину 412 мм приваривается дымоход. Затем внутри корпуса на высоте 30-35 см от топочного отверстия необходимо приварить временные упоры. Это может быть проволока или арматура. На них сверху опускается блин с дымоходом.
Основные стыки
А вот теперь самый важный момент – надо сварить между собой блин и корпус котла. Проварить шов надо обязательно с двух сторон и сделать это необходимо качественно. Этот стык есть сопряжение топки и водяного бака.
Далее на торчащий из котла дымоход надевается блин 425 мм. Здесь необходимо хорошо проварить два стыка: между внешними краями блина и корпусом котла, между дымоходом и металлическим кругом.
Топочный отсек
Следующий этап касается топочной камеры. С обратной стороны от дымохода внутрь корпуса вставляется готовая решетка из арматуры.
Затем из уголка 25 мм вырезаются болгаркой несколько кусков, которые привариваются внутрь котла между топочным отверстием и поддувалом. Это будут упоры, на которые ляжет решетка.
Нижняя часть корпуса
И последнее. Необходимо приварить блин 425 мм к нижнему краю корпуса, приварить к нему четыре ножки из трубы 25 мм высотою по 5 см. Далее привариваются петли, на которые навешивается дверца топки.
Конструкция для задвижки поддувала
Конструкция может быть разной: в виде обычной дверцы, в виде шибера (это заслонка, которая перемещается в плоскости отверстия), в виде поворотной заслонки с отверстиями в корпусе. Продаются готовые изделия, которые просто привариваются по месту.
Можно сварить цельную конструкцию своими руками и прикрепить ее к котлу. Из всех предложенных вариантов самый простой – это или дверца, или шибер.
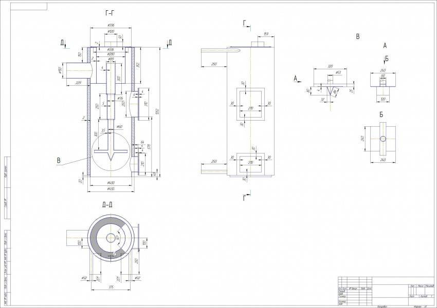
Шахтный котел длительного горения
Водоснабжение и Отопление
При установке твердотопливного котла важно учитывать 3 параметра: количество выдаваемого тепла, стоимость и продолжительность горения. Результаты связаны между собой: чем выше мощность, длительность работы, тем будет больше стоить устройство
Можно значительно понизить затраты, если сделать все собственноручно. Шахтный котел длительного горения своими руками выполнить реально, если есть чертежи и небольшая сноровка в подобных делах.
Увеличение продолжительности горения твердого топлива
Каждый домовладелец желал бы установить котел, который не потребует подбрасывания дров каждые 6 часов. Некоторые теплогенераторы держат тепло до недели. Но увеличение длительности не всегда рационально, ведь понижается КПД установки. Причины в следующем:
- КПД дровяных котлов составляет около 70%. Если заменить процесс тлением, увеличив тем самым продолжительность процесса, КПД уменьшится примерно до 40%, примерно как у простой печки.
- Дрова, которые тлеют, выделяют мало тепла. Потому дом нагреваться будет значительно дольше.
- Не получится сжечь сырые дрова, если котел использует только режим тления.
Котлы, работающие с одной подачей дров на протяжении 8 и выше часов, бывают следующих видов:
- классические, где подача воздуха осуществляется принудительно;
- с верхним горением. Подобные установки можно сделать самостоятельно, если имеется подходящий инструмент и опыт работы со сваркой.
Можно найти схемы котлов, работающих на опилках, но подобные установки сложно изготовить самостоятельно, плюс, они очень большие.
Изготовление котла продолжительного горения
» alt=»»>
Чтобы собственноручно сделать установку, потребуется сталь Ст 20. Выполненная из нее установке прослужит не менее 15 лет. При большем количестве углерода в стали, материал может прикаливаться от высоких температур, потому для изготовления он не подходит. Если есть возможность, купить можно жаропрочную сталь, легированную молибденом или хромом. Из таблицы можно узнать, какие размеры заготовок потребуются для изготовления устройства.
Размеры заготовок
Чтобы разрезать материал, лучше обратиться в мастерскую, где имеются гильотинные ножницы. В частях не будет заусенцев, будет сэкономлено много времени. Также будут нужны следующие детали:
- Равнополочный уголок 50х4 мм. Нужен будет, чтобы изготовить колосники.
- 2 трубы: DN50 и DN Первая для теплообменника и патрубков, к которым будут подключаться системы отопления. Вторая – для дымохода.
- Труба 60х40 мм для канала воздуховода.
- Стальная полоска 20х3 мм.
- Утеплитель из базальта.
- Ручки.
- Асбестовый картон и шнур.
Также понадобятся инструменты для сварки металла, резки и некоторые другие, имеющиеся в каждом жилище.
Вентилятор и блок управления
В шахтном котле будет использован блок управления, вентилятора, температурного датчика. Стоит найти польские изделия, которые очень похожи на китайские, но значительно отличаются по качеству сборки, сроку службы. Маркировка блока управления — KG Elektronik SP-05, вентилятора — DP-02.
Отопительный агрегат
Первым делом для изготовления шахтного котла следует собрать корпус топливника. Делается он из металлических частей, толщина которых 4 мм. Их требуется прихватить сваркой. Начать стоит с нижней части, где будут крепиться боковые части, крышка свода, отверстия для дверец. Должно получиться примерно так же, как на фотографии:
Сварка стенок
Следовать нужно чертежу. Лист на днище должен быть выпущен в каждую сторону. Он же будет служить нижней частью дверец отдела для золы. В камере сваркой необходимо будет закрепить полки. В материалах были указаны уголки. Там будет ложиться колосниковая решетка
Важно после сварки проверить на герметичность каждый отсек, тщательно проварив все стыки
Сварка стенок
Далее нужно вставить водяную шубу. Материал – 3-х миллиметровый металл. Толщина у боковых стен ее должна быть 2 см, потому к топливнику приваривается стальная полоска, выпускаемая на 20 мм. К стенкам нужно прихватить листы стали – обшивку.
Стенки бака
» alt=»»>
Разновидности котлов отопления
Для изготовления котла нужен опыт проведения сварочных работ
Ассортимент отопительных агрегатов позволяет подобрать установку по финансовым возможностям и личным предпочтениям владельцев
При выборе устройства целесообразно обращать внимание на тип топлива
Специфика твердотопливных моделей
В сельской местности или при желании сэкономить на топливе можно устанавливать дровяной, брикетный, угольный агрегат. В линейку твердотопливных моделей также входят котлы на опилках и коксе. Все устройства отличаются экологичностью и безопасностью. По принципу работы бывают:
- Классические – нагревают помещение посредством прямого сжигания топливных материалов. Закладка производится через 5-6 часов.
- Пиролизные – функционируют по принципу дожига газа, выделенного в камере сгорания. Топливо загружается раз в 12-14 часов.
При самостоятельном изготовлении модели на твердом топливе нужно организовать дымоход с качественной тяги, место под топливо.
Характеристики электрокотлов
Электрический котел можно сделать своими руками из старого газового баллона
Электрический тип отопителей отличается компактностью, бесшумной работой, доступной стоимостью. Изделия различаются по типу нагревающих элементов:
- На ТЭНах. Модификации с трубчатым нагревателем подходят для напольной и настенной установки. Недостатком является образование накипи на ТЭНе.
- На электродах. Подойдут для системы из 1-2 батарей или большого помещения. Устройства производительны, быстро греют воду, но чувствительны к ее химическому составу.
- Индукционные. Быстро разогревают теплоноситель любого типа, имеют КПД в 100 %, оснащаются системой защиты от перегрева.
Особенности газовых устройств
Газовый отопитель можно подобрать по нескольким параметрам:
- Количество контуров. Одноконтурные варианты работают только на обогрев, двухконтурные помимо обогрева подключаются к системе ГВС.
- Способ нагрева воды. Применяется проточная колонка или встроенный бойлер на 150-180 л.
- Количество теплообменников двухконтурной модификации. Единый битермический элемент греет воду на отопление и ГВС. У агрегатов с двумя теплообменниками первичный задействуется для отопления, вторичный – для горячего водоснабжения.
- Тип камеры сгорания. Котел с открытой тягой ставится в отдельном вентилируемом помещении и оснащается вертикальным дымовыводом, т.к. забирает воздушные массы естественным способом. Закрытое оборудование оснащается коаксиальной дымовыводной трубой, расположенной по горизонтали, а воздух в него подается вентилятором или кулером.
- Способ розжига. Электрический применяется для приборов, горящих непостоянно. Модификации с пьезовым розжигом включаются вручную.
Котлы отопления на жидком топливе
В качестве жидкого топлива используется солярка, масло, бензин
Дизельный отопительный агрегат устанавливается на даче, в загородном или частном доме в соответствии с требованиями пожаробезопасности. Он находится в специальном помещении с качественной вентиляцией или мощной вытяжкой. Для хранения жидкого топлива используются специальные емкости. Преимущества жидкотопливных вариантов – высокие показатели мощности и производительности.
Сборка отопительного агрегата
В первую очередь к блину 412 мм приваривается дымоход. Затем внутри корпуса на высоте 30-35 см от топочного отверстия необходимо приварить временные упоры. Это может быть проволока или арматура. На них сверху опускается блин с дымоходом.
Основные стыки
А вот теперь самый важный момент – надо сварить между собой блин и корпус котла. Проварить шов надо обязательно с двух сторон и сделать это необходимо качественно. Этот стык есть сопряжение топки и водяного бака.

Далее на торчащий из котла дымоход надевается блин 425 мм. Здесь необходимо хорошо проварить два стыка: между внешними краями блина и корпусом котла, между дымоходом и металлическим кругом.
Топочный отсек
Следующий этап касается топочной камеры. С обратной стороны от дымохода внутрь корпуса вставляется готовая решетка из арматуры.

Затем из уголка 25 мм вырезаются болгаркой несколько кусков, которые привариваются внутрь котла между топочным отверстием и поддувалом. Это будут упоры, на которые ляжет решетка.
Нижняя часть корпуса
И последнее. Необходимо приварить блин 425 мм к нижнему краю корпуса, приварить к нему четыре ножки из трубы 25 мм высотою по 5 см. Далее привариваются петли, на которые навешивается дверца топки.
Конструкция для задвижки поддувала
Конструкция может быть разной: в виде обычной дверцы, в виде шибера (это заслонка, которая перемещается в плоскости отверстия), в виде поворотной заслонки с отверстиями в корпусе. Продаются готовые изделия, которые просто привариваются по месту.

Можно сварить цельную конструкцию своими руками и прикрепить ее к котлу. Из всех предложенных вариантов самый простой – это или дверца, или шибер.
Определение с параметрами проекта
Точного определения данному понятию нет. Соответствующее оборудование появилось, как ответ на требования потребителей повысить уровень комфорта в процессе эксплуатации, увеличить выработку тепла в расчете на единицу использованных энергетических ресурсов.
Основным недостатком классических котлов является необходимость регулярного добавления топлива в топку. Сложности создают также следующие факторы:
- высокая интенсивность горения;
- сложность оперативной регулировки и контроля этого процесса;
- неполное использование тепла, которое удаляется вместе с дымом через систему вентиляции.
Для поддержания работы обычного котла лучше иметь рядом достаточный запас дров
Разные конструкции
Для решения отмеченных выше задач используют различные решения. Чтобы не закладывать часто новые порции топлива увеличивают размеры топки. Сделать процесс горения равномерным помогает размещение сверху прижимного устройства, дозированная подача воздуха.
Схема типичного котла этого класса
Создать чертежи твердотопливных котлов длительного горения своими руками будет проще после подробного изучения стандартной конструкции:
- В начальном положении прижимное устройство (10) находится в верхнем положении.
- Через дверцу (6) в топку загружают крупную партию дров.
- После поджигания происходит регулируемый механическим приводом (16) процесс горения.
- Свежий воздух подается нагнетателем через телескопическую полую внутри штангу. Он распределяется равномерно через прижимной диск (10).
- Подача кислорода сверху обеспечивает постепенное сгорание топлива, слоями.
- Золу после завершения цикла удаляют через нижнюю дверцу (13).
- Для поднятия диска (10) в верхнее положение используют лебедку (2) с электроприводом.
Недостатком данной конструкции является невозможность произвольной закладки дров в топку. Существенное преимущество – повышенная до 24 часов и более длительность одного рабочего цикла.
В следующей конструкции топливо можно подкладывать по мере необходимости. Здесь использована технология пиролиза. Она характерна дозированной подачей кислорода и низкой интенсивностью горения. Тлеющие дрова выделяют горючий газ. Он сгорает в дополнительной камере.
Пиролизный котел
Эта установка полноценно использует топливо. В продуктах сгорания содержится минимальное количество сажи. Сложной является оптимальная регулировка рабочих процессов.
Газовые и дизельные агрегаты лишены упомянутых недостатков по причине простоты дозирования соответствующих видов топлива. Подобный результат можно получить, если использовать специальным образом спрессованные гранулы из отходов деревообработки, шелухи семечек, иного горючего сырья.
Пеллетный котел
В данном варианте гранулы (пеллеты) засыпают в бункер, откуда они подаются шнековым механизмом в топку. Понятно, что такая конструкция позволяет при необходимости быстро увеличивать и уменьшать подачу топлива. Гибкое изменение производительности котла пригодится для оптимизации работы при изменении внешней температуры, подключении дополнительных потребителей. С гранулами не слишком сложно работать при транспортировке, хранении.
Теплообменник для подогрева воды
Повышают эффективность котлов с помощью сложных структур выходных узлов. В таких конструкциях повышается температура теплоносителя. Аналогичные функции выполняют полые стенки корпуса.
Чертежи твердотопливных котлов длительного горения своими руками
Прежде чем искать соответствующую документацию, необходимо точнее определиться с конструкцией. Предпочтительной является первая схема твердотопливного котла длительного горения, своими руками ее будет создать проще.
Принципиальная схема котла
Для отопления сравнительно небольшого частного дома с общей площадью 150-250 м. кв. достаточно будет следующих размеров:
Чертежи твердотопливных котлов длительного горения своими руками
При высоте чуть более 1,5 метра и ширине около 40 см не сложно будет найти подходящее место для установки. Но надо учитывать необходимость создания технологических проходов для обслуживания. Понадобится свободное пространство сверху для монтажа лебедки и другого оборудования.
Конструкторскую документацию можно создать без соблюдения стандартов
Для реализации частных проектов не обязательно соблюдению ГОСТов. Но чем подробнее получился чертеж твердотопливного котла длительного горения своими руками, тем проще будет исключить ошибки на ранних стадиях.
При удалении большого количества ржавчины перед окраской может понадобиться респиратор
Расчеты для самодельного газового котла отопления
Газовые котлы своими руками нужно делать, только точно рассчитав все. Если это сделать правильно, оборудование сэкономит владельцу не только разовые затраты, но и эксплуатационные.
Изготавливать агрегат необходимо, учитывая потери тепла в каждом помещении, где будет проведено отопление. Нужно понимать, что даже в случае если комнаты одинаковые, теплоотдача в каждой будет разной. Лучше всего расчеты проводить с небольшим запасом. При этом схема помещения не подойдет, лучше отталкиваться от реальных размеров
Важно все проверить несколько раз, чтобы точно исключить возможность появления ошибки, ведь она может привести в будущем к перерасходу топлива и увеличению затрат
Чтобы газовые котлы, созданные своими руками, работали, как положено, нужно:
- рассчитать всю гидравлическую систему;
- учесть расходы на дымоотвод, включая дефлектор;
- заранее определиться с диаметром труб;
- установить нужную мощность насоса;
- и рассчитать сопротивление системы.
Если все вычислить правильно, каких-либо сбоев быть не должно.





































