Варианты перепланировки и зонирования в двушке
Перепланировка двухкомнатной квартиры сулит вам довольно большие денежные затраты, но в итоге вы получите современную квартиру на уровне дорогих европейских жилых комплексов. Если типовая планировка не отвечает вашим нуждам, следует обратиться за помощью к дизайнерам интерьера.
Типовая планировка двухкомнатной квартиры

Стандартная планировка двухкомнатной квартиры современного типа выглядит так, как показано на фотографии выше. Здесь есть кухня, гостиная и отдельная спальня с гардеробом…
Объединение гостиной и прихожей

Кстати, вы можете объединить гостиную и прихожую (коридор), тогда ваша квартира станет просторнее и привлекательнее. На плане выше в зону открытой планировки добавлена ещё и кухня достаточно скромного размера. Благодаря этому приёму холл получил естественное освещение со стороны кухни.
Перенос кухни в гостиную и обустройство кабинета на месте кухни

Здесь кухню перенесли из центра квартиры в правый нижний угол, в гостиную, освободив место для кабинета при спальне. Вход в спальню теперь осуществляется из кабинета, а на его старом месте расположились два маленьких встроенных шкафа.
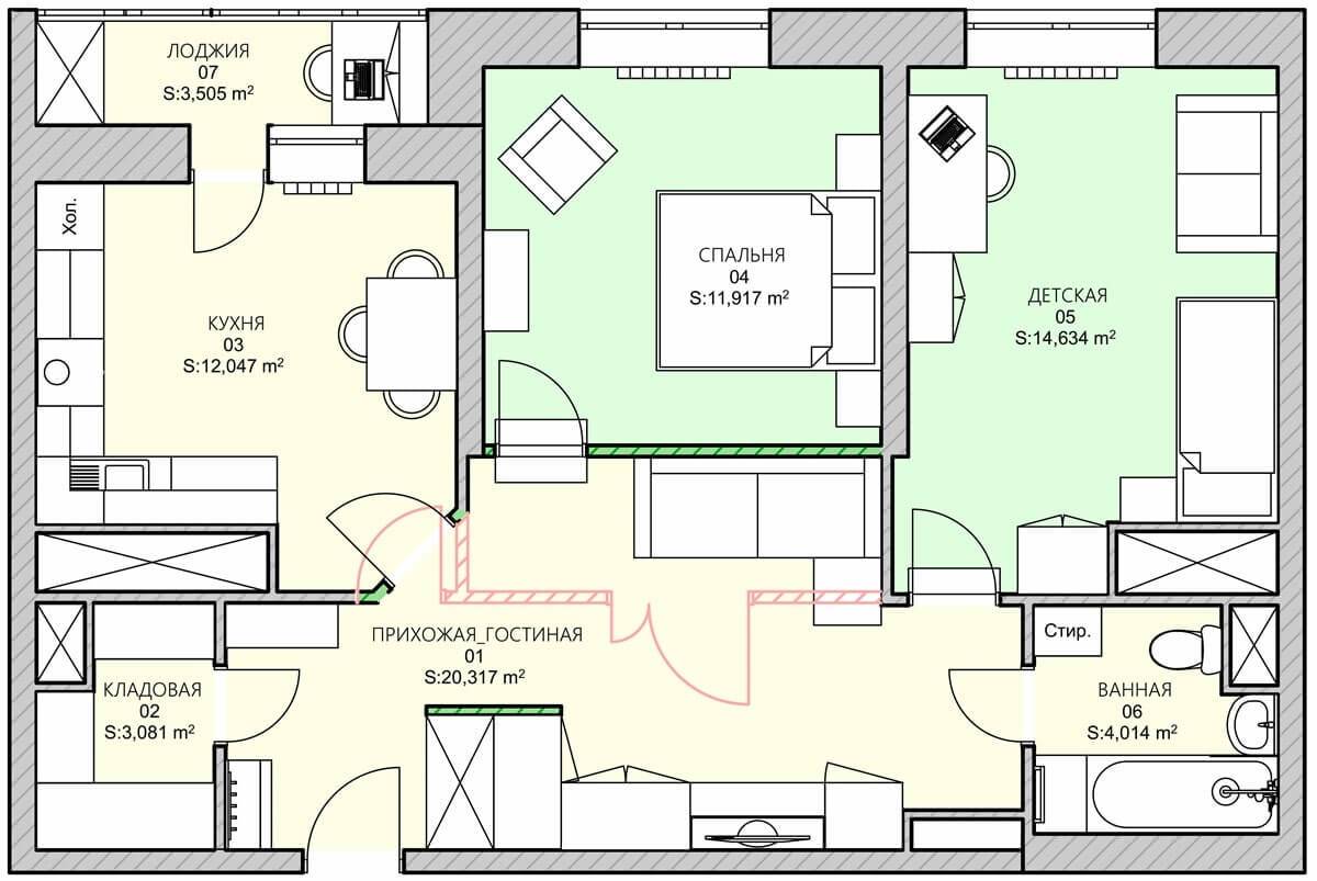
Перенос кухни в гостиную, на месте кухни – детская

В центре квартиры, там, где раньше была кухня, теперь расположена детская комната. В квартире с такой планировкой можно легко разместиться семье из трёх-четырёх человек. Кухня же была перенесена в гостиную, в угол комнаты, вдали от окна.
Перенос гостиной в коридор или прихожую

За счет уменьшения гостиной (центральная комната на плане выше) в прихожей теперь разместилась новая гостиная. Таким образом, двухкомнатная квартира стала трехкомнатной с отдельной кухней.
Объединение кухни и гостиной

Простое объединение кухни и гостиной отлично подойдёт для жизни двух человек в двухкомнатной квартире. Плюсом будет и организация встроенного гардероба.
Объединение кухни и гостиной, с отдельной детской

В данном случае двухкомнатная квартира рассчитана на четверых. В детской стоит двухъярусная кровать, а в новой кухне-гостиной за перегородкой есть ещё одна двуспальная кровать.
Перенос кухни в гостиную, две отдельные детские комнаты

Ещё один вариант с переносом кухни в гостиную, рассчитан на большую семью. Здесь может достаточно комфортно разместиться от 4 до 6 человек. В гостиной на раскладном диване – спальное место для родителей, в одной детской на месте кухни и во второй отдельной спальне с балконом стоит по двухъярусной кровати. Таким образом, здесь всего три комнаты, в которых можно спать. Это будет удобно для семьи с 2-4 детьми или семьи с 1-2 детьми и ещё одним старшим родственником.
Перенос кухни в коридор, на ее месте – детская

Если ваш коридор достаточно широк, в нём тоже можно организовать кухню. Тогда гостиная останется гостиной, а на месте спальни и кухни вы разместите спальню и детскую комнату!
Планировка двухкомнатной квартиры с двумя спальнями

В этом случае гостиная была разделена на две зоны – гостиную и дополнительную спальню. Кухня осталась на прежнем месте, но стала частью открытой планировки. Такое возможно если в гостиной изначально было два окна, или вам вполне достаточно одного оконного блока кухни для всей кухни-гостиной.
Перепланировка двухкомнатной квартиры в 48 квадратных метров

А это интересная перепланировка двухкомнатной квартиры рассчитана на 2-4 человек. Здесь есть спальня, ещё одна маленькая спальня и кухня-гостиная. Площадь квартиры – 48 квадратных метров, и по сути она уже является трехкомнатной.
Перепланировка двухкомнатной квартиры 56 квадратных метров

Вот ещё один удачный вариант планировки двухкомнатной квартиры. В углу гостиной выделяется место для кухни в нише, гостиная остаётся на своем месте, тогда у вас остается ещё две отдельные комнаты для двух спален!
Перепланировка двухкомнатной квартиры 42 квадратных метра

Изначально двухкомнатная квартира представляет собой две жилые комнаты (одна большая, другая маленькая), кухню, прихожую, ванную комнату и лоджию или балкон. Если вы хотите свести перепланировку к минимуму, обратитесь к варианту двухкомнатной квартиры как на фотографии выше. Здесь вход на кухню теперь осуществляется из гостиной, в коридоре размещены два гардероба – для прихожей и для спальни, а гостиная расширена за счет прихожей. Это минимальный набор преобразований для бюджетного ремонта.
Нежный прованс
Полюбившийся многим прованс – это сочетание французских деревенских мотивов с классической старинной мебелью. Хорошо подходит для спален и кухонь. Цвета выбираются светлые: бежевые, пастельные, розовые, оливковые – все те, что могут создать эффект выцветших стен.
Никаких подвесных или натяжных потолков – исключительно белый классический потолок.
Но главный акцент делается на мебели – искусственно или же натурально состаренной. При этом различные дефекты в виде сколов, облупившейся краски только подчеркивают старину. Весьма выгодно на фоне прованса смотрятся различные сельские аксессуары: пряности в горшочках, сундук, цветы в миниатюрных ведерках.
Планировка в зависимости от типа постройки
На территории постсоветского пространства осталось множество многоэтажек, которые были построены очень давно. Между собой они различаются типом планировки квартир. Условно им давно уже были даны неофициальные названия:
- сталинки;
- брежневки;
- хрущёвки;
- новостройки.
Попробуем выделить характерные особенности каждого типа постройки, чтобы знать, в каком направлении осуществлять дальнейшую работу.
Сталинки
Такие квартиры отличаются большим размером комнат и высокими потолками. Их особенностью считается отсутствие несущих стен. Это можно выгодно использовать для создания новых необычных перепланировок. Хотя, такие квартиранты изначально имеют удобное расположение комнат и часто полностью устраивают владельцев своей стандартной планировкой.
В таких квартирах удобно превращать пространство двухкомнатной квартиры в трёхкомнатную, добавляя в конструкцию детскую комнату или кабинет, если это необходимо. Площадь квартиры прекрасно позволяет это сделать.
Брежневки
Не самый худший вариант среди старых построек, хоть и по сравнению со стариками, размер этих квартир существенно уменьшился. Комнаты нельзя назвать огромными, но они остаются по-прежнему просторными с раздельным санузлом и кухней в пределах 8 м².
В брежневках несущие стены располагаются внутри квартир, поэтому возможности перепланировки немного ограничиваются.
Если проектная организация позволяет сносить несущие стены, то такая перепланировка будет отличаться лишь объёмом работ по снесению несущих стен. В остальном же обычные перегородки легко переносятся.
Хрущёвки
Изначально этот тип квартир возводился как временное жильё. Однако сейчас это наиболее часто встречающийся тип среди существующих. Особенности квартиры:
- небольшие габариты;
- низкие потолки;
- очень маленькие кухни;
- совмещённые санузлы.
Не слишком хорошо продумана в хрущёвках и проходимость, которая часто вызывает дискомфорт у жильцов. Если быть честными и откровенными, то квартире-хрущёвке можно найти бесконечное количество недостатков и очень мало достоинств. Но выход есть и из этой ситуации, например, применение одного из дизайнерских проектов по перепланировке. Можно рассмотреть такие варианты:
- соединение площади коридора с жилой комнатой;
- объединение кухни и рядом расположенной комнаты;
- часть пространства холла выделяется для разделения ванной и туалета.
Немного позже мы с вами рассмотрим подробнее варианты перепланировки для хрущёвки.
Новостройки
Последний вид среди перечисленных. Он отличается вполне крупными размерами кухонь, отдельно расположенными большими комнатами, раздельными ванной, туалетом и большим коридором. Обычно в таких квартирах есть лоджия, которую можно разбить, и тем самым сделать комнату более просторной. Новостройки – это тоже тот вариант квартир, который не особо нуждается в перепланировках, так как в нём заранее всё продумано для удобства жильцов. Чаще всего такие квартиры переделывают в современные студии.
Внутренняя отделка под декоративный камень и кирпич (панели, плитка). Секреты «сильного» интерьера + 215 ФОТО
Дизайн кухни в двухкомнатной квартире
Кухня в двухкомнатной квартире может быть отдельной или открытой, маленькой или средней по площади, с зоной гостиной, располагаться как на своём исходном месте, так и совсем в другой комнате – коридоре, гостиной, на лоджии или даже на месте спальни!
Кухня с открытой планировкой: плюсы и минусы
Открытая планировка кухни позволит вам реализовать мечту почти каждого современного человека – общественную зону с островом, большим диваном, двумя окнами и красивым дизайном интерьера
Если для вас это важно, смело используйте открытую планировку и в своём проекте. Минус в том, что гостиная перестаёт быть приватной комнатой. И если вы хотите использовать её и для спального места, такой вариант вам может не понравиться, особенно если в вашей семье много человек
И если вы хотите использовать её и для спального места, такой вариант вам может не понравиться, особенно если в вашей семье много человек.
Кухня с островом
Остров может быть представлен как простой столовой группой, так и островом с барной стойкой и рабочей столешницей, а может даже содержать множество функциональных элементов – плиту, раковину, встроенные стиральную и посудомоечную машину и многое другое. Кстати, в последнем варианте слив нужно будет прокладывать в полу ещё при ремонте.
Дизайн узкой и длинной кухни
Специально для вас мы нашли вариант потрясающего дизайна маленькой, узкой и длинной кухни, какие так часто можно встретить в двухкомнатной квартире. Как видите, и закрытая и приватная маленькая комната тоже может быть красивой.
Белая кухня в стиле минимализм
Пожалуй, самым модным вариантом оформления современной кухни является белый гарнитур в стиле минимализм, с островом. Если вы остановитесь на этой идее, вы точно получите ультра-современный интерьер.
Открытая планировка комнаты 25 кв. метров
А вот так можно оформить в скандинавском стиле комнату площадью около 25 квадратных метров в двухкомнатной квартире, где будет ещё одна отдельная спальня или детская комната.
Обзор дизайна двухкомнатной квартиры (60 квадратных метров)
Автор дизайна
Анастасия Вивенцова
Дизайнер
Объект: Двухкомнатная квартира (60 кв.м) в новостройке на 25-ом этаже. Город Санкт-Петербург. Для семьи из 3-ёх человек с взрослым сыном. Задача: фактически расширить пространство, функционально обустроить квартиру, выполнить дизайн двухкомнатной квартиры в Скандинавском стиле.
Для решения первой задачи: произведён демонтаж части перегородок, что позволило объединить пространство узкой прихожей и кухни, а также увеличить высоту потолков (визуально), что значительно расширило восприятие.
Со второй задачей справились благодаря современной мебельной фурнитуре систем Push To Open, доводчиков и направляющих, встраиваемой техники, инновационных поверхностей софт-тач и 3-D.
Стиль Скандинавии поддержан во всех жилых зонах квартиры — оттенки серого, вкрапления бирюзового и лимонного, чёрный, графитовый, белый цвета.
Коридор (прихожая)
Небольшая прихожая Г-образно переходит в , в котором размещены по обе стороны двери – вход в санузел и хозяйственную комнату.
Для иллюзорного увеличения пространства одна из стен коридора покрыта зеркальным панно. Стена у входа (слева) декорирована панелью с 3-D-эффектом, которыми обшиты и антресоли сверху. Оттенок панели – холодный седой пепел в скандинавском духе.
Щиток спрятан за декоративной дверцей-картиной. Гардероб с несколькими створками от пола до потолка имеет МДФ-фасад, имитирующий шлифованный светлый бетон.
Кухня
Дизайн кухни в двухкомнатной квартире выдержан в графитовой, белой и антрацитовой палитре.
Кухонный гарнитур петербургского производства — угловой. Вся кухонная бытовая техника встраиваемая.
Панели дверей гарнитура имеют лакокрасочное матовое покрытие Soft-touch светлого серого тона. Для целостности цветового решения рабочая поверхность изготовлена из кварцевого агломерата с глянцем цвета стали.
В шкафах предусмотрено обилие мест для хранения, что реализовано посредством встроенного в искусственную нишу шкафа шириной 1,80 м с дверьми-панелями с системой Push To Open.
Обеденная зона — круглый стол со столешницей из ясеня с выбеленным ламинатом и мягкие стулья в стиле хай-тек.
Жилая гостиная комната
Вход в гостиную оформлен раздвижной стеклянной матовой дверью тёмно-серого цвета. По стене слева от входа расположены купейные двери во всю стену, за которыми полки и большое количество встроенных секций для вещей.
Периметр комнаты не имеет чёткого зонирования, однако рабочее пространство обозначено наличием мягкого вращающегося кресла и подоконником-столешницей с настольной лампой. Обобщающий цвет помещения – белый (стены и корпусная мебель). Зона для отдыха и сна – мягкий серый диван (2 х 1,80 м в разложенном виде) с подушками, напротив – телевизор.
Окна закрывает система панельных штор блэкаут и римские шторки. Батарея обогрева закрыта белой графичной панелью по индивидуальному дизайну Анастасии.
Спальня (родителей)
В светло-серых оттенках выполнена вся спальня в двухкомнатной квартире. Посередине располагается дизайнерская двуспальная кровать с мягким изголовьем, набитым на стену. Обивка кровати и изголовья – мебельный бархат цвета чайной розы.
Напротив распложена белая тумба с выдвижными ящиками и подвесным столиком-будуаром. Здесь же находится раздвижная система, за которой спрятана гардеробная с кронштейнами, комодом и полками.
Над изголовьем кровати расположен арт-объект в минималистичном стиле.
Санузел
Туалет и душевая комнаты изолированы. В туалете располагается консоль с подвесным унитазом и скрытой системой слива. Над ним – встроенный бойлер. Фартук помещения выложен чёрной керамикой, вторая верхняя половина выкрашена в белый цвет. Здесь же расположен умывальник квадратной формы.
Душевая квадратная комната – с кабинкой со стеклянными раздвижными дверьми. Внутри кабинки стены облицованы мелкой мозаикой «антислип» цвета «антрацит».
Стены окрашены влагостойкой белой краской. Шкаф в душевой комнате имеет встроенную нишу для стиральной машины и полки для хранения, в качестве дверцы дизайнер использовала рулонную шторку с влагостойкой пропиткой. Цветовая гамма помещения – контраст графита и белого.
Хозяйственное помещение
В хозкомнате разместился большой функциональный шкаф белого цвета с отсеками для хранения бытовой электротехники и гладильной доски.
Варианты дизайна двухкомнатной квартиры в зависимости от площади
Конечно, в крохотной хрущевке невозможно создать роскошный стиль Барокко, а огромная открытая студия будет смотреться странно в рюшах деревенского стиля. От габаритов тоже очень зависит, какой выбрать дизайн и на что делать акцент.
49 кв.м.
Компактная квартирка в 49 кв.м. может напугать жильцов нехваткой пространства. Но не пугайтесь, даже из такой квартиры можно «выжать» максимум пользы.
Тут важно, чтобы комнаты были светлыми. Никаких темных оттенков, тяжелой мебели и громоздкого декора
Как можно больше естественного и искусственного освещения, гладкие глянцевые поверхности, побольше зеркал, чтобы создать ощущение простора.
Идеальные решения – это стиль хай-тек и минимализм.
51 кв.м.
Тут места уже побольше, но лучше все равно придерживаться тех же принципов, что и для малогабаритного жилья. Используйте в пространстве зеркала: например, зеркальные двери и шкафы-купе с зеркальными дверцами. Не делайте ставку на тяжелую громоздкую мебель, она будет «давить» и украдет много пространства. Применяйте встраиваемую мебель, используйте углы и ниши в стенах. Современные стили лучше всего подходят для таких компактных двушек.
52 кв.м.
Это пространство не слишком просторное, но вполне позволяет делать зонирование и воплощать разные дизайнерские идеи. Лучше всего тут будет смотреться Скандинавский или Эко стиль. Эти направления помогут визуально расширить пространство, но в то же время создадут уют и ощущение порядка.
Светлые натуральные оттенки, игра с текстурами, декор – это все «на руку» в таком пространстве.
54 кв.м.
В квартире таких габаритов есть место для дизайнерских фантазий. Тут все зависит от того, что вы желаете подчеркнуть: уют и комфорт или же функциональность и современность. Если первое – то на пространстве в 54 кв.м. смело создавайте скандинавский стиль, эко или Прованс. Если же для вас на первом месте функциональность, если вы хотите сохранить максимум пространства – выбирайте минимализм или хай-тек, модерн или другие современные направления.
57 кв.м.
Квартира с такими габаритами подходит для более роскошных интерьерных решений. Не нужно загромождать все углы декором, продумайте заранее каждую деталь. Вы можете выбрать либо современный стиль, либо более классический – английский, неоклассику, даже рококо. Пространство вполне позволяет.
Такую цветовую палитру предпочитают многие люди. Благородные и спокойные цвета не раздражают.
58 кв.м.
У вас большая и просторная квартира, но это пространство лучше сохранить. Если вы забьете каждый уголок мебелью и декором, то будет ощущение беспорядка и тесноты. Лучше выберите лофт или минимализм – на такой площади эти стили будут выглядеть по-настоящему роскошно.
62 кв.м.
В таком обширном пространстве важно и сохранить «дыхание» интерьера, и сделать так, чтобы не было пустынно. Лучшее решение – современный стиль или неоклассика, сочетание современности и роскоши
Тут должно быть ощущение чистоты, так что выбирайте светлые оттенки и натуральные материалы.
Можно обставлять комнаты тяжелой деревянной мебелью и ставить крупный декор – напольные вазы, деревья.
63 кв.м.
Если душа тянется к роскоши, то оформите вашу просторную квартиру в стиле Барокко или Классика. Тут есть, где разгуляться! Но не менее удачно заиграет квартира в современном хай-теке или даже в стиле лофт. Последний, кстати, очень «любит» большие пространства, так что можно поэкспериментировать.
Правильное освещение
Правильное освещение в маленьких пространствах квартир как на фото может выступить не только в роли источника света, но и оригинального элемента декора
Важно учитывать количество природного света, при необходимости дополняя дизайн стандартными рекомендациями. Продажа встроенных светильников позволит выбрать оптимальный вариант для центрального освещения, оформления ниш, арок и перегородок. В качестве дополнительных источников освещения выступят бра, торшеры, оригинальные настольные светильники
Довольно практична идея, использовать световой поток для органичного разграничения зон, выделения области оформления, части проходной стены, или чтобы подчеркнуть стильный аксессуар. Также выгодно использовать подсветку по всему периметру потолка, наполняя пространство достаточным количеством света для создания комфортной и уютной обстановки
В качестве дополнительных источников освещения выступят бра, торшеры, оригинальные настольные светильники. Довольно практична идея, использовать световой поток для органичного разграничения зон, выделения области оформления, части проходной стены, или чтобы подчеркнуть стильный аксессуар. Также выгодно использовать подсветку по всему периметру потолка, наполняя пространство достаточным количеством света для создания комфортной и уютной обстановки.
Начало работы – это перепланировка
Перепланировка дает возможность скрыть все имеющиеся недостатки и расширить пространство. Любая перестройка квартиры должна быть согласована с БТИ. Все вопросы уточняются с работниками данной организации.
Планировка разделяется на некоторые виды:
1. Хрущевка. Представляет собою тесное помещение: небольшие комнаты, низкие потолки. Здесь возможен демонтаж стен, которые разделяют комнаты. Можно сделать кухню – столовую – гостиную и спальню. Избавившись от ненужных стен, получится квартира — студия. Иногда зоны разделяют с помощью ширм.
2. Брежневка. Здесь в принципе не так уж и плохо. Менять, что — либо уже не так и нужно. Так как потолки сделаны повыше, немного увеличенные комнаты. Минимальное, что здесь можно сделать – это выиграть в пространстве с коридором и обьеденить санузел.
3. Сталинка. Квартиры тех времен представляют качественное жилье. Высокие потолки, габаритные комнаты, которые неплохо расположены. Большая территория при перепланировке позволяет намного увеличить нужные зоны и получиться квартира с тремя комнатами.
4. Новостройки. Здесь уже все заранее спроектировано. Хозяевам еще при стройке дома предоставляется возможность составить план желаемой квартиры.
Выбор стиля дизайна для двухкомнатной квартиры
Итак, вы определились, что для вас в вашем жилище на первом месте по функциональной важности. Самое время решить, в каком стиле будет выполнен ремонт и обставлены комнаты! Для вдохновения советуем вам посмотреть, как можно больше фото различных дизайнерских ремонтов 2-х комнатных квартир, чтобы иметь представление, как выглядит классический стиль и чем он отличается от неоклассики, что такое лофт, и в чем стилевые особенности минимализма
В целом можно сказать, что любая двухкомнатная квартира или студия может быть оформлена в любом из известных дизайнерских направлений. Главное – подобрать со вкусом и уместно.
Кантри
Этот прекрасный стиль подойдет тем, кто обожает уют, милое очарование деревни, натуральные материалы и простоту в деталях. Кантри – это деревенский стиль, и кстати, это очень модное направление среди дизайнеров интерьера. Этот дизайн требует большого количества дерева, натуральные оттенки и натуральные материалы, простую грубую мебель. Пространство может быть любых габаритов, особенно уютной будет небольшая квартирка в этом стиле.
Большое внимание уделяется декорированию пространства и различным аксессуарам
Хай-тек
Очень красивой и современной будет выглядеть квартира в стиле хай-тек. Этот дизайн больше подойдет для просторной двушки в современном новом доме с высокими потолками и большим количеством естественного освещения.
Хай–тек отлично подходит для оформления двухкомнатной квартиры.
Хай-тек – это линейное оформление, минимум лишнего декора, обтекаемые формы и гладкие текстуры, максимально современная и высокотехнологичная мебель, техника, предметы интерьера. Как будто маленький космический корабль, а не просто квартира.
Лофт
Обожаемый дизайнерами лофт прекрасно подойдет для двушки, особенно если она достаточно большая, а еще лучше – студия. Лофт предполагает простор, отсутствие стен и перегородок, а в идеале вообще «open space», когда все комнаты объединены в одну и зонированы только мебелью, весьма условно. Отличный вариант для холостяцкого жилища!
Интерьер в стиле лофт выбирают люди творческие, любящие простор и свободу.
Неоклассика
Роскошная современная мебель, сочетание шика и простоты, комфорт и дороговизна – вот что такое неоклассика
Максимальное внимание к каждой детали. Исключительно светлые, натуральные оттенки без пестроты
Никаких дешевых элементов оформления. Все строго, но уютно. Для маленькой квартирки этот стиль не подходит, он требует простора и света.
Неоклассика представляет собой сочетание изысканного вкуса и сдержанности.
Экостиль
А вот экостиль – отличное решение для самой небольшой двушки! Все натуральное, природные материалы, естественные цвета, все теплое и очень милое. Эта квартирка будет вашим убежищем в жестоком мире, и возвращаясь в нее, вы будете отдыхать душой!
Также требуется большее пространство, подразумевается перепланировка квартиры.
Минимализм
Если у вас большая двухкомнатная студия с высокими потолками, в современной новостройке, и если вы хотите подчеркнуть свой статус, хороший вкус и современные взгляды на жизнь – стоит обставить жилье в стиле минимализм.
Зачастую при оформлении применяют спокойные и благородные тона с самым ограниченным количеством декора и узоров.
Никаких деталей, только крупный план! Все простое, дизайнерское, из одной гармоничной коллекции. Правда, если в семье дети – вряд ли задумка удастся. А вот для холостяцкой жизни – в самый раз!
Другие возможные стили
Вы можете обустроить ваше жилище в стиле Прованс: обычно этот стиль очень гармонично дополняет интерьер двушки, будет уютно и красиво. Можно выбрать классический стиль, но лишь в том случае, если в квартире много места, а у вас большой бюджет.
Скандинавский стиль – идеален для двухкомнатных квартир, независимо от габаритов. Красивый, современный и очень уютный! Выбирайте на свой вкус, ведь главное – чтобы нравилось вам, не так ли?
Преобладающее большинство мебели и элементов декора имеют четкие геометрические линии.
Дизайн для стандартной планировки
Создавая дизайн проект типовой двухкомнатной квартиры, можно столкнуться с двумя существенными проблемами: нехваткой пространства кухни, ванной, туалета и коридора. Поэтому в этих помещениях используют все доступное место наиболее рационально, но не в ущерб удобству и комфорту. Естественное, что придется делать, так это применять встраиваемую технику по максимуму, чтобы не загромождать место, а также визуально увеличивать пространство при помощи освещения и применения светлых тонов обстановки.
В ванной комнате мебель подбирается только из расчета хранения минимально необходимого набора для принятия ванны и душа. Раковину можно убрать, а доступное пространство использовать под тумбу и подвесной шкаф. Место под ванной можно оборудовать под хранение разных вещей и отказаться от мебели вообще. Еще один вариант — на место габаритной ванны установить душ-кабинку. Установка зеркал улучшит функциональность и визуально расширит помещение.
В туалете вообще ставить какую-либо мебель не рекомендуется, так как там обычно проходят основные коммуникационные трубы, к которым нужен постоянный доступ для обслуживания и ремонта. Достаточно будет установить рольставни или имитацию шкафчика-купе, а место, скрытое за ними, применять для хранения моющих средств и вантуза.
Наличие узких коридоров в дизайне стандартной двухкомнатной квартиры не позволяет устанавливать крупные предметы декора и шкафы или использовать их в каких-то других целях. Поэтому минимально можно ограничиться расположением небольшой угловой тумбы для хранения обуви и подставки под телефон. Так как в нем постоянно не хватает дневного света, то применение зеркал и светлых тонов также будет неотъемлемой их чертой. Установка бра и развешивание картин на стенах создадут таинственную атмосферу. Монтаж подвесного потолка с точечными источниками света придаст обстановке современный вид.
Спальня, как и полагается, должна быть оборудована кроватью и шкафом-купе. Тональность подбирается в основном с теплыми оттенками, но чтобы создать молодежный интерьер двухкомнатной квартиры применяют яркие решения, например, зеленые и красные тона. Прикроватные тумбочки позволят хранить все мелкие личные вещи, а большое зеркало и туалетный столик помогут хозяйке уже с утра выглядеть красиво.
Варианты удачных перепланировок
Совмещение кухни с жилой комнатой. Это позволит создать просторную гостиную, выполненную в виде студии, и заполнить интерьер для двухкомнатной квартиры всем необходимым. Перегородку можно убрать полностью или оставить и использовать для создания различных архитектурных форм. Разделение на зоны кухни, столовой и гостиной в виде мобильных перегородок позволят увеличивать пространство под определенные задачи там, где это действительно необходимо. Применение плавных линий в подвесных потолках или разных уровнях пола смогут создать ошеломляющий эффект, а дизайн интерьера двухкомнатной квартиры — неповторимым.
Объединение коридора и гостиной. В результате кухня и спальня останутся изолированными, а то, что не нужно видеть гостям, будет надежно скрыто. Коридорная площадь не будет теряться впустую и на его месте уже можно ставить шкаф или оборудовать гостевое спальное место. Установка больших диванов и кресел теперь стала более уместна и не вызовет ощущение тесноты.
Симбиоз спальни и гостиной в интерьере двухкомнатных квартир необходим для молодых семей, когда требуется получить максимальное количество пространства, чтобы собирать шумные компании и организовывать крупные вечеринки. Зонирование в таком случае можно не использовать за счет установки трансформируемой многофункциональной мебели. Цвета можно подобрать самые смелые и отойти от стандартов.
Заключение
Дизайн проекты двухкомнатных квартир имеют достаточно большую степень свободы для творчества и могут быть реализованы в полной мере под различные требования собственников. Даже стандартные планировки не смогут загнать в тупик, поскольку в них заложен большой потенциал. Поэтому перед тем, как начать изменять интерьер в лучшую сторону, необходимо взвесить все возможные его преимущества и недостатки, чтобы не совершить непоправимой ошибки.





































