Особенности одноэтажных домов с мансардой и гаражом
Дом с мансардой – это здание, где часть объема, расположенного под крышей, оборудовано жилым помещением. Любой дом должен хорошо вписываться в участок и окружение других построек на нем, что является основным критерием при выборе проектов для его сооружения.
Например:
При наличии небольшого участка, дома будут выбираться с малой площадью застройки, которыми являются двухэтажные строения.
Принимается во внимание соседство. Не привлекательный вид имеет одноэтажное бунгало среди многоэтажных вилл.
Для многих проекты загородных домов с мансардой и гаражом являются самыми популярными. В этом случае, при наличии малой площади застройки, можно получить достаточно большую жилую площадь, используя пространство под крышей, как показано на фото.
Жилое помещение в мансарде
В домах такого типа естественным образом помещение делится на:
- Общую площадь.
- Дневную, расположенную на первом этаже.
- Приватную часть, которая предназначена для сна.
Здесь лестница (см. Лестница в гараже своими руками: как правильно сделать) подъем не затрудняет, она лишь соединяет два этажа
К тому же в интерьере она выигрывает: элемент привлекает внимание
Преимуществами такого строения являются:
- Соотношение, которое имеют цена строительства к полученной при этом площади жилища, достаточно выгодное.
- Здесь стены только на первом этаже, на втором жилые помещения расположены под крышей.
- Эксплуатация здания не имеет чрезмерных расходов.
- Компактный объем, и ограниченная площадь внешних ограждающих конструкций, позволяет сделать дом с мансардой энергосберегающим: достаточно позаботиться о правильной теплоизоляции и оборудовать сооружение современными системами коммуникации.
- Иногда ограничением функциональности бывают скошенные скаты крыши, но такая проблема только в доме, где проект выполнен некачественно.
- Правильно определенная высота аттиковой стены, нужный угол наклона ската, удобная планировка помещений, которая учитывает формирование крыши, дают возможность увеличить функциональность комнат.
- Там, где скосы могут помешать, например, в ванной, можно выполнить широкую люкарну или часть крыши в этой части дома приподнять, что сделает архитектуру дома более разнообразной.
Люкарна на крыше в загородном доме
- Часто проекты загородных домов с гаражом и мансардой, на первом этаже имеют большую площадь, чем под кровлей. В этом случае под скосами обустраиваются самые низкие участки, а вся крыша делается низко, что значительно улучшает пропорции здания. В такой конструкции легче сохранить удобный масштаб.
- Особенности домов с мансардой в том, что они имеют определенный стиль, а это может быть как недостатком, так и достоинством.
Требования, предъявляемые к мансардам:
- Вертикальные стены должны быть высотой от 0,8 до 1,5 метра. При высоте до 0,8 метра эта помещение является полумансардой, свыше 1,5 метра – полноценный этаж.
- Высота жилой комнаты в максимальной части составляет более 2,3 метров. Если она меньше помещение будет чердаком.
- Размещение полов в мансарде должно быть на уровне балок для опор стропил кровли.
Проекты домов с мансардой и гаражом: советы при постройке
Французские окна в дизайне двухэтажного дома
Чтобы надстроенная комната не покосилась, а стены, потолки не трескались и не протекали нужно соблюдать некоторые правила:
- стены нужно устанавливать исключительно на несущие опоры. Для выступающего помещения за пределы стен основного здания, нужны дополнительные опоры;
- спасением от сильного ветра станут несущие конструкции, выполненные из особо прочных материалов – дерева, бетона, металла;
В проекте домов с мансардой и гаражом необходимо уделить особое внимание прочности конструкции
- помещение полностью (крыша, пол, стены) нужно утеплять негорючими материалами;
- окна желательно располагать на южной стороне дома;
- высота потолков должна быть такой, чтобы человек мог ходить, не сгибаясь в три погибели.
Великолепный особняк в терракотовом цвете
Самые распространенные ошибки при строительстве:
- слой утеплителя укладывается с учетом климатической зоны;
- зазоров в утеплителе не должно быть;
- не рекомендовано применять утеплитель для горизонтальных поверхностей;
- в местах, где утеплительный материал примыкает к стенам, его контур должен быть замкнут.
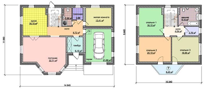
Проект одноэтажного дома в современном стиле с мансардой и гаражом на 2 машины
План мансардного этажа
Учитывая все особенности построек с мансардами, приходится констатировать, чтобы строения надежно служили долгие годы, их должны строить специалисты.
Соответствие очертания сооружения размерам земельного участка
При возникновении необходимости в создании большой жилой площади при скромных размерах земельного участка многие выбирают двухэтажные постройки, различные вариации которых можно увидеть на фото проектов домов 8 на 10 с мансардой и гаражом. Однако ежедневные перемещения по лестницам придутся по вкусу немногим. Особенно это касается людей преклонного возраста и лиц, ограниченных в передвижении
В этом случае стоит обратить внимание на проекты одноэтажных домов с гаражом и мансардой
Если участок узкий, лучше отдать предпочтение варианту строения с глухой стеной, на которой отсутствуют окна и двери. Такое решение позволит возвести дом с мансардой в непосредственной близости от границы раздела участка. Вдоль продольных стен можно разместить постройку для хозяйственных нужд.

Дом с мансардой – это отличное решение для маленького участка
При выборе варианта планировки помещения необходимо расположить гостиную и спальни по торцам здания, благодаря чему будет обеспечено максимальное проникновение естественного света в помещение, в том числе и в мансарду. Вход следует разместить во фронтонной или торцевой части. Размещение гаража с мансардой – фото наглядно это отображают – также выбирается фронтонное.
Проекты домов с мансардой и гаражом: отличительные черты коттеджей
Дом с мансардой – фото наглядно отображают различные варианты – является наиболее рациональным решением для небольшого участка, позволяющим увеличить жилую площадь без сокращения земельных угодий. Наличие личного транспорта становится причиной еще одного популярного приема – строительства дома с гаражом.

Проект дома с мансардой и гаражом для одного автомобиля
Проекты коттеджей с гаражом и мансардой обладают рядом преимуществ:
- благодаря совмещению двух функциональных зон удается снизить затраты, связанные с разработкой проекта и выполнением строительных работ;
- смежное расположение жилой зоны и гаража создает комфортную обстановку в последнем, что приводит к снижению затрат, связанных с отоплением гаража;
- создание внутреннего прохода позволяет беспрепятственно перемещаться из комнаты в гараж, не выходя на улицу, что особенно удобно в период ненастья;
- создание мансардного помещения обеспечивает увеличение жилой площади, что особенно актуально для одноэтажных построек;
- компактное многофункциональное сооружение позволяет существенно сэкономить свободную площадь земельного участка;
- строительство мансарды обойдется значительно дешевле, чем возведение второго этажа;
- мансардный этаж позволяет дополнительно утеплить жилое помещение, избавив его от сквозняков;
- пристроенный гараж будет стоить намного меньше, чем отдельно стоящий элемент;
- строения имеют стильный и презентабельный внешний вид, заметно выделяющий их на фоне других построек.
Варианты проектов для создания больших построек
Сегодня существует множество вариаций готовых проектов домов и коттеджей с мансардой и гаражом. Все они отличаются габаритами и внутренним наполнением. Существуют варианты одноэтажных и двухэтажных строений, помещений с цокольным этажом, винным хранилищем или баней.

Для строения дома с мансардой и гаражом можно воспользоваться готовым проектом
Дома с площадью более 100 м² намного проще обустроить. Фото планов строений наглядно отображают множество различных вариаций, в том числе это проекты гаража и мансарды на 2 машины. Мансардный этаж будет более вместительным благодаря большой свободной площади. Здесь существует возможность организовать несколько жилых комнат, обустроить спортзал, поставить бильярдный стол или создать просторную гостиную. Гараж, который может иметь разные габариты, несложно пристроить с любой стороны сооружения. При этом в обязательном порядке следует учитывать эстетику дома, чтобы пристройка не искажала его пропорции.
Возведение габаритного строения можно осуществлять по проекту одноэтажного дома с гаражом на 2 машины. Особенно это актуально, когда в семье насчитывается два автомобиля. Над гаражом можно организовать зимний сад, домашний кинотеатр или игровую, что наглядно отображено на фото гаража на 2 машины с мансардой.
Можно придать строению стильность и оригинальность, заменив стандартные стены мансардного этажа стеклянными. Также владельцы двух и более автомобилей по достоинству оценят проект дома с гаражом под домом, расположенным на первом этаже. Жилые комнаты в этом случае находятся в мансардном помещении, которое планируется исходя из личных предпочтений хозяев дома. Различные варианты можно увидеть на фото проектов гаража с жилой мансардой.
Вариации проектов небольших домов: фото примеры
Проекты домов с мансардой до 100 м² требуют более внимательного подхода при обустройстве жилого помещения и гаража. Если дом вытянутый и узкий, гараж пристраивают с торца. В случае квадратного строения пристройку можно выполнить с любой стороны. Еще одним вариантом, который часто предусматривается в проекте дома 6 на 8 с мансардой, является оборудование цокольного этажа, где можно обустроить гараж. Такое решение позволит получить компактное, вместительное, многофункциональное и стильное строение на небольшой территории. По соседству с гаражом можно обустроить парную или баню.

Проектирование небольшого дома с мансардой требует более внимательного подхода
Мансарда в этом случае будет иметь меньшую площадь. Здесь возможно расположение всего одной комнаты
Поэтому, чтобы получить максимум свободного пространства, особое внимание следует уделить конструкции крыши, выбрав ломаный вариант. Для дачной версии мансардное помещение может быть использовано в качестве хозяйственного помещения. В этом случае рекомендуется обустроить двускатную крышу, вследствие чего удастся существенно сэкономить на строительстве
В этом случае рекомендуется обустроить двускатную крышу, вследствие чего удастся существенно сэкономить на строительстве.
При создании дизайна домов часто применяются дополнительные архитектурные элементы, благодаря которым создается не только презентабельный и стильный внешний вид строения, но и расширяется свободное пространство внутри дома. Одним из таких элементов является эркер. Фото домов с гаражом и мансардой наглядно демонстрируют множество вариаций его расположения.
Также можно использовать колонны, эксклюзивные окна. Дополнительное обустройство террасы или веранды облагородит строение, сделав его более уютным. Для комфортного летнего отдыха отнюдь нелишним будет создание балкона.

Если дом имеет прямоугольную форму, то гараж лучше расположить с торца
Внимания заслуживает проект дома с мансардой (фото это наглядно отображают), где гараж покрывает плоская крыша, которая является основанием террасы. Эстетичность и элегантность конструкции достигается умелым комбинированием отделочных материалов. Для большой семьи придется по душе просторный коттедж с мансардой, увенчанной ломаной крышей, что обеспечивает максимальное целевое использование мансардного этажа.
Прежде чем определиться с конкретным вариантом, следует подробно изучить различные проекты, где в плане дома с мансардой и гаражом представлены всевозможные вариации внутренней планировки помещений. Опытные специалисты адаптируют выбранную разработку под конкретный регион и внесут необходимые изменения, основываясь на пожеланиях заказчика.
Обзор проектов домов с гаражом под одной крышей из различных материалов
Для строительства дома с гаражом под одной крышей могут использоваться различные материалы, особенности которых следует учитывать при разработке проекта. Выбор следует делать с учётом места строительства. Вариант, предназначенный для тёплого климата, не подойдёт для северного региона. Предлагаем познакомиться с интересными решениями, заслуживающими внимания.
Для строительства могут использоваться различные материалы
Проекты домов с гаражом из газобетона – доступное решение
Если вы ограничены в средствах, обратите внимание на проекты домов с гаражом из газобетона. Данный материал имеет небольшой вес, а потому:
- не оказывает существенного влияния на основания. Чаще всего предпочтение отдаётся свайному или ростверковому фундаменту;
- позволяет выполнять строительные работы в одиночку;
- требует тщательного расчёта несущей способности.



Проекты домов с гаражом из бруса, заслуживающие внимания
Качественная древесина обладает высокими шумо- и теплоизоляционными характеристиками. Именно поэтому проекты домов с гаражом из бруса пользуются особой популярностью. Экологически безопасный материал станет оптимальным вариантом для возведения качественного и безопасного жилья.
В случае случайного воспламенения сгорит не только пристройка с находящимся внутри автомобилем, но и всё строение. Кроме того, такие дома стоят достаточно дорого. Зато они имеют продолжительный срок службы и презентабельный внешний вид. Предлагаем оценить привлекательность деревянных построек:
1 из 6






Интересные проекты кирпичных домов с гаражом
Достаточно дорогостоящий вариант, так как выполнить кирпичную кладку сможет не каждый, особенно при наличии конструктивных особенностей. Несмотря на высокую стоимость материала, проекты кирпичных домов с гаражом пользуются устойчивым спросом. Готовое строение обладает высокими тепло- и звукоизоляционными характеристиками. Стены способны выдержать значительную эксплуатационную нагрузку.
1 из 6






Проекты домов с гаражом из прочих материалов
Кроме традиционных решений существует множество современных вариантов. Проекты каркасных домов с гаражом заслуживают особого внимания благодаря малым срокам строительства. Однако они нуждаются в тщательных проектных расчётах. Для изготовления стен чаще всего используются СИП-панели.


Правильное утепление небольшого дома с мансардой и гаражом
Дома с мансардой нуждаются в организации правильного утепления. Гараж утеплять необязательно
Здесь важно организовать хорошую вентиляцию. Самым сложным этапом является утепление мансардного этажа
Здесь важно исключить возникновение сквозняков и проникновение холодных порывов ветра. Также следует должным образом организовать гидроизоляцию. Выбор утеплителя зависит от типа помещений, что находятся под мансардой, и от длительности времяпрепровождения на этаже.
Наиболее популярный материал – пенопласт. Он поставляется в плитах, благодаря чему обеспечивается его удобная транспортировка и монтаж. Материал характеризуется легким весом, хорошими теплоизоляционными свойствами, низкой стоимостью. Среди недостатков можно выделить легкость воспламенения и большую вероятность раздробления изделия при монтаже.

Наиболее популярным материалом для утепления домов является пенопласт
Еще одним бюджетным материалом, что часто используется для утепления мансард, является стекловата, имеющая высокую степень теплоизоляции и устойчивость к воспламенению. Однако работать с материалом тяжело, поскольку он выделяет в воздух опасную для здоровья человека стеклянную пыль, которая может повредить дыхательные пути. Монтаж изделия следует производить в специальных средствах защиты, оберегающих органы дыхания и кожу от повреждения.
Эквивалентом стекловаты, который обладает теми же характеристиками, но лишен недостатков, является минеральная вата. Помимо этого, материал характеризуется устойчивостью к повышенной влажности, хорошей паронепроницаемостью, невосприимчивостью к зарождению микроорганизмов, пониженными теплопроводящими свойствами и экологичностью. Такие отличительные достоинства отражаются на стоимости материала.
Почему отдают предпочтение гаражам с мансардой
Ключевое достоинство гаражей с мансардным этажом – наличие «бонусной» жилплощади, которую можно использовать по своему усмотрению. Помимо хранения автомобилей, такое сооружение может использоваться в качестве гардеробной, тренажерного зала, музыкальной студии, кухни или бильярдной. Мансарду можно отвести под игровую комнату для ребенка, художественную студию, временный склад, библиотеку или кладовую для хранения сезонных предметов и оборудования.
Для молодых семей надстройка над гаражом может стать удачной альтернативой проживанию с родственниками. Обустроив жилую комнату над гаражом, молодожены решат наболевший квартирный вопрос и получат возможность свить уютное семейное гнездышко.
Проект гаража с жилой мансардой привлекателен еще и тем, что строительство такого объекта обойдется не намного дороже стандартного гаража, в то время как возведение отдельно стоящего сооружения требует дополнительной площади и финансовых вложений.
Гараж с мансардой – это способ сэкономить на площади участка и на финансахИсточник assz.ru
Варианты проектов домов с гаражом и баней
Перед выбором проекта необходимо собраться всей семьёй и обсудить, что и где будет находиться, выслушать предложения каждого. И только потом принять единственно правильное решение. Для этого потребуется предварительный план участка в масштабе на клетчатом листе бумаги.
На нём нужно нарисовать границы участка и отметить объекты, которые уже есть и не планируются к сносу (как сделать планировку участка своими руками, читайте в статье).
Определение положения дома поможет понять, каких габаритов и формы строение может быть. После этого окунаемся в многообразие проектов творческих мастерских. Наша редакция сделала подбор нескольких вариантов
Рассмотрим их и узнаем, на какие моменты нужно обращать внимание
Любой проектировщик внесёт изменения в разработанный ранее проект, если это требуется для заказчика. Кто-то делает это за доплату, а кто-то добавляет такую возможность для своих клиентов в качестве дополнительной опции, если изменения не глобальные.
Проекты домов с террасой: фото типовых, индивидуальных и комбинированных построек
Все существующие проекты условно можно разделить на три группы: типовые, индивидуальные и комбинированные решения. Каждый подход имеет как преимущества, так и недостатки. Перед тем, как приступить к разработке проекта или к выбору готового решения, следует определить, какой тип входной зоны будет использоваться.
Статья по теме:
Многие люди пристраивают террасы к дому своими руками, фото-проекты в подобном исполнении чаще всего предполагают использование входной зоны открытого типа. В этом случае у владельца участка появляется возможность создать эффект неограниченного пространства. К тому же подобные проекты универсальны и подходят для строений любого типа. Открытая терраса обеспечивает доступ естественного освещения к примыкающим помещениям.
Из-за тени от навеса в комнате, которая выходит окнами на террасу, будет не очень светло
Крытые террасы считаются более практичными, так как они могут эксплуатироваться в любое время года. Благодаря навесу входная зона будет защищена от солнца, ветра и дождя. Если на террасе установить ограждения и балюстрады, ее можно использовать в качестве веранды или уютного уголка для отдыха.
Особенности типовых проектов: одноэтажные дома с гаражом и террасой
Под типовым проектом чаще всего архитекторы понимают дома со стандартными параметрами, укомплектованные гаражом и террасой. Эти решения полностью готовы к использованию. Владельцу участка останется только вызвать строительную бригаду, которая соорудит здание на территории по готовой схеме.
Проэкт дома с террасой со встроенным гаражом
Преимущества типовых проектов:
- Невысокая стоимость дома – отсутствуют затраты на операции по планированию и разработке.
- Упрощенная система монтажа – бригада может сразу же приступать к реализации проекта.
- Высокая скорость строительства – специалисты не будут ожидать доработок, подстраиваться под них. Бригада приедет на участок с готовыми элементами для строительства и отлаженной схемой работы.
Благодаря этим преимуществам большинство семей отдает предпочтение именно типовым конструкциям.
Важным преимуществом одноэтажного дома с объединенным гаражом в том, что это сочетание экономит территорию
Индивидуальные проекты и комбинированные дома с террасой: фото интересных зданий
Индивидуальное проектирование требует времени и дополнительных затрат, однако результат может превзойти все ожидания.
Дом с террасой выглядит очень необычно и красиво
Преимущества индивидуального проектирования:
- Возможность воплотить в реальность понравившиеся дизайнерские идеи.
- Уникальная планировка дома.
- Эстетически привлекательный результат.
Этот метод подходит тем, кто хочет получить дом, соответствующий личным предпочтениям. В процессе разработки учитываются все пожелания заказчика, если они не противоречат требованиям безопасности.
Существует еще одно альтернативное решение — здания, полученные методом комбинации. В этом случае владелец участка подбирает готовый бесплатный проект, который нравится ему больше всего, и привносит в него несколько изменений. Результат получается отчасти стандартным, отчасти уникальным. Этот метод сочетает в себе преимущества индивидуальных и типовых построек, сохраняя приемлемую цену.
Последовательность работ при возведении гаража
Строительство такого объекта с жилой комнатой отличается от возведения обычного гаража рядом особенностей. Строительная компания предоставит типовой проект или возведет строение по индивидуальным эскизам. В первом случае вы используется готовая документация и чертежи, которые были разработаны заранее. При создании персонального проекта будут учтены ваши личные пожелания, но такой вариант обойдется дороже.
Чтобы получить хороший результат лучше обратиться к специалистамИсточник assz.ru
Согласно первому, у вас есть возможность выбора готовой документации и проектов, которые были разработаны заранее.
Ключевые этапы возведения включают:
Заливку фундамента.Лучшим вариантом под проект гаража на 2 машины с мансардой традиционно считается монолитное основание, которое обустраивают в заранее вырытом котловане. Подготовленную площадь либо заливают тяжелым бетоном, либо укладывают готовые железобетонные плиты.
Возведение стен гаража из кирпичаИсточник assz.ru
- Подготовку дверных и оконных отверстий.
- Сооружение крыши на мансардном этаже.Воплощая в жизнь проект гаража на две машины с мансардой, следует учитывать, что во время непогоды дождевые капли могут создавать сильный шум, стуча по профнастилу. Если такой вариант не подходит, рекомендуется отдать предпочтение черепице или шиферу.
- Обустройство мансардных окон. При выборе окон для мансарды необходимо руководствоваться светопропускной способностью и теплоизоляционными свойствами представленных на современном рынке моделей. Рекомендуемое соотношение площади остекления по отношению к площади пола мансардного этажа – 1:10. Коэффициент теплопередачи должен составлять меньше 0,8 Вт/м2. «Теплые» окна позволят сократить затраты на обогрев помещения в холодное время года.
- Подключение коммуникаций.В гараже с мастерской, баней и жилой комнатой не обойтись без электричества, холодного и горячего водоснабжения, газа и канализации. Если планируется постоянное проживание в смежной с баней жилой комнате, необходимо также позаботиться об интернете и средствах связи.
- Работы по утеплению и гидроизоляции крыши и стен.Это особенно актуально, если вы планируется круглогодичное проживание в мансарде.
Если строение будет использоваться не только в теплый период, то оно требует хорошего утепленияИсточник kamtehnopark.ru
Последний этап – это отделочные работы.Внутренняя и внешняя отделка выполняется в соответствии с вашими пожеланиями и эстетическими предпочтениями.
Особенности конструкций домов из пенобетона
Для строительства зданий существуют самые разные проекты. Одноэтажные дома с мансардой с гаражом могут возводиться из самых разных строительных материалов. Наибольшую популярность приобретают дома построенные своими руками из пенобетона.
Это объясняется тем, что:
- Материал имеет антисептические и огнеупорные свойства.
- Возводимая конструкция стен легкая.
- Пенобетон обладает хорошими теплоизоляционными характеристиками.
- Скорость кладки достаточно высокая.
- Затраты на строительство, по сравнению с каменной кладкой меньше.
К недостаткам материала можно отнести:
- Высокая гигроскопичность блоков из пенобетона.
- Легко деформируются.
- После окончания строительства требуется некоторое время на его высыхание.
- По технологии укладки блоков предусматривается устройство компенсационных швов, для чего понадобится некоторая квалификация рабочих.
- При суровых климатических условиях следует выполнять наружное утепление стен пенополистиролом.
Инструкция, по сооружению крыши для таких домов, предлагает три вида конструкций:
- Одноуровневую.
- Двухуровневую.
- Часть антресольного этажа.
Для изготовления кровли можно брать:
- Черепицу.
- Шифер.
- Керамику.
Не рекомендуется использование:
- Металла.
- Металлокерамики.
Чтобы обеспечить полный комфорт сооружению, крышу следует делать в несколько слоев:
- Установить мембраны тепло- и звукоизоляционные.
- Выполнить наружную обрешетку.
- Устроить вентиляционное пространство.
- Сделать утеплительную прослойку из минеральной ваты или пенопласта (см. Как утеплить крышу в гараже и какие материалы применить).
Утепление крыши мансарды
- Соорудить внутреннюю обрешетку.
- Проложить пароизоляционную фольгу.
- Установить рейки для внутренней отделки помещения.
- Оконные проемы и рамы обеспечить откосами и гидроизоляцией.
При соблюдении технологии строительства, любой проект дома можно сделать уютным и комфортным, где будет красивая мансарда и удобный гараж. А как это сделать правильно подскажет видео.
Почему отдают предпочтение гаражам с мансардой
Ключевое достоинство гаражей с мансардным этажом – наличие «бонусной» жилплощади, которую можно использовать по своему усмотрению. Помимо хранения автомобилей, такое сооружение может использоваться в качестве гардеробной, тренажерного зала, музыкальной студии, кухни или бильярдной. Мансарду можно отвести под игровую комнату для ребенка, художественную студию, временный склад, библиотеку или кладовую для хранения сезонных предметов и оборудования.
Для молодых семей надстройка над гаражом может стать удачной альтернативой проживанию с родственниками. Обустроив жилую комнату над гаражом, молодожены решат наболевший квартирный вопрос и получат возможность свить уютное семейное гнездышко.
Проект гаража с жилой мансардой привлекателен еще и тем, что строительство такого объекта обойдется не намного дороже стандартного гаража, в то время как возведение отдельно стоящего сооружения требует дополнительной площади и финансовых вложений.
Гараж с мансардой – это способ сэкономить на площади участка и на финансахИсточник assz.ru
Как оборудовать под мансарду чердак загородного коттеджа
Практически в любом доме есть чердак, который используется для хранения старых вещей.
При желании планировка и обустройство чердака может быть самым выгодным образом переоборудована в мансарду. Появится полноценный второй этаж дачи, который можно использовать по личному усмотрению, придав ему прекрасный, ухоженный вид. Начать перепланировку предусмотрительнее всего будет с укрепления пола мансарды деревянными балками.
С этой же целью можно вначале уложить поперечные специальные перегородки, а на них уже сделать настил деревянного «чернового» пола, который в дальнейшем станет основой для красивого добротного покрытия.
Особое внимание уделим утеплению мансарды для того, чтобы морозной зимой в ней было так же тепло и уютно, как и летом
Процесс утепления чердака для оборудования мансарды
Любая планировка крыши загородного дома даёт гарантированную защиту от дождя и снега, но от холода она уберечь не в состоянии, поэтому необходимо будет заранее позаботиться о специальном утеплителе. Для этой цели лучше всего подойдут обычные средней толщины маты.
Также нужно не забыть и о должной системе вентиляции мансардного этажа. Планировка загородной дачи 6х6 с мансардой предусматривает проведение в дом электричества, общей системы отопления и центрального водоснабжения. Всё это необходимо для полноценного и комфортного проживания в доме в любое время года.
Проекты домов с мансардой и гаражом: отличительные черты коттеджей
Дом с мансардой – фото наглядно отображают различные варианты – является наиболее рациональным решением для небольшого участка, позволяющим увеличить жилую площадь без сокращения земельных угодий. Наличие личного транспорта становится причиной еще одного популярного приема – строительства дома с гаражом.

Проект дома с мансардой и гаражом для одного автомобиля
Проекты коттеджей с гаражом и мансардой обладают рядом преимуществ:
- благодаря совмещению двух функциональных зон удается снизить затраты, связанные с разработкой проекта и выполнением строительных работ;
- смежное расположение жилой зоны и гаража создает комфортную обстановку в последнем, что приводит к снижению затрат, связанных с отоплением гаража;
- создание внутреннего прохода позволяет беспрепятственно перемещаться из комнаты в гараж, не выходя на улицу, что особенно удобно в период ненастья;
- создание мансардного помещения обеспечивает увеличение жилой площади, что особенно актуально для одноэтажных построек;
- компактное многофункциональное сооружение позволяет существенно сэкономить свободную площадь земельного участка;
- строительство мансарды обойдется значительно дешевле, чем возведение второго этажа;
- мансардный этаж позволяет дополнительно утеплить жилое помещение, избавив его от сквозняков;
- пристроенный гараж будет стоить намного меньше, чем отдельно стоящий элемент;
- строения имеют стильный и презентабельный внешний вид, заметно выделяющий их на фоне других построек.
Выбираем проект дома с гаражом: рекомендации редакции
Выбирая подходящий вариант, следует сначала определиться с типом дома. Если речь идёт о дачном строении, к его характеристикам будут предъявляться одни требования. Строение же, предназначенное для постоянного проживания, должно иметь более высокие эксплуатационные характеристики. Также следует определиться с желаемой площадью.
При выборе характеристик следует определиться с:
- количеством машин, которые будут в нём находиться;
- расположением въезда. Данный фактор зависит от особенностей ландшафта на конкретном участке;
- назначением помещения. Возможно, строение будет использоваться не только для хранения авто, но и для его ремонта. В последнем случае потребуется размещение специального оборудования.


Итог
При проектировании дома с мансардой и гаражом необходимо учитывать большое количество особенностей и нюансов
В подобном здании нет несущественных мелочей, поэтому важно учесть любые нюансы – материал для стен, тип крыши, разводку коммуникаций, размер участка, строительный регламент и нормативы и тысячи других мелочей
Именно поэтому стоит обращаться в специализированные фирмы, где работают действительно опытные специалисты. Они обеспечат соблюдение все, даже наименьших нюансов, оставив заказчику самое интересное – выбор красивого проекта дома, в котором действительно комфортно и уютно жить.





































