Дизайн посуточной квартиры: минимализм и светлые тона
Исходите из обычных стандартов удобного жилья, не стараясь придать ему индивидуальность и «креативный» облик.
Для проведения работ можно обратиться к дизайнеру с невысокими расценками. Это поможет избежать безвкусицы, а также оптимально спланировать расходы. Профессионалы берутся и за бюджетные проекты квартир для сдачи. Оформление новой однушки с чистовой отделкой может обойтись заказчику в 200 тысяч рублей. В этом случае использовались обои, МДФ-панели и краска из строительного супермаркета (правда, плитка и сантехника достались от застройщика).
При ремонте квартиры-студии для посуточной аренды дизайнер-любитель уложился в 250 тысяч рублей. В эту сумму вошло также приобретение мебели, бытовой техники, посуды, постельного белья.
Не делайте ремонт «под себя»
Если решили обойтись своими силами, поищите идеи будущего облика вашей «кормилицы» в интернете. Вашу квартиру будет снимать множество людей с самыми разными вкусами, поэтому ориентироваться на свои предпочтения нет смысла. Исходите из обычных стандартов удобного жилья, не стараясь придать ему индивидуальность и «креативный» облик.
Главное, чтобы квартира была чистая, функциональная и уютная. Никаких старомодных ковров и тяжелых штор, требующих ухода и собирающих пыль! Лучше всего сдаются светлые интерьеры, выполненные в минималистском скандинавском стиле. Несколько ярких акцентов — и wow-эффект на просмотрах объявления вам обеспечен. С помощью современных отделочных материалов можно навести лоск совсем недорого.
Закупайтесь самостоятельно
Составьте список того, что нужно купить, сравните цены у разных продавцов. Выгоднее всего затариваться в крупных строительных гипермаркетах: там часто предлагают скидки, проводят распродажи, снижают стоимость товаров из старых коллекций.
Не передоверяйте закупки мастерам-ремонтникам — им нет никакого интереса беречь ваши средства. Сами рассчитайте, сколько нужно кафеля (площадь помещения делится на площадь одной плитки плюс обрезки), плинтусов (измерьте периметр) и так далее. Если работать аккуратно, перерасход материалов не превысит 5-8%.
Выбирайте антивандальные материалы
Постарайтесь сделать ремонт, который выдержит все причуды постояльцев.
Постарайтесь сделать ремонт, который выдержит все причуды постояльцев. На пол в прихожую, кухню и санузел знатоки советуют класть кафельную плитку (от 500 рублей за квадратный метр). Ламинат в прихожей вспучиться через один-два сезона, а водостойкие варианты стоят не дешевле кафеля. Очень низкая цена на плитку должна насторожить: возможно, это неликвид, который вскоре треснет и начнет пропускать воду.
В санузле и коридоре можно сделать наливной пол с высокой износостойкостью.
Если потолок неровный, возможно, проще и дешевле заказать натяжной: монтируется он просто, ремонтируется быстро, а обойдется в 15-25 тысяч рублей.
Стены лучше оформить декоративной штукатуркой, в санузле, на кухне и балконе — пластиковыми панелями: они хорошо моются и быстро заменяются при повреждении. Гипсокартон не годится — его легко проломить. Стены можно покрасить — это дешево и сердито, и всегда можно подправить испачканный фрагмент.
Хитрости от дизайнеров
Как сделать недорого косметический ремонт на кухне? Если вы уже привели в порядок потолок, пол и стены, то настало время мебели. И тут дизайнеры придумали некоторые хитрости, которые помогают сэкономить деньги. Качественные шкафы необязательно менять полностью, достаточно сменить фасады. Задние и боковые стенки пусть остаются старыми. Чтобы кухня обрела совсем новый вид, купите новые ручки. Даже другой смеситель или мойка придадут комнате совершенно новый облик.
Сейчас очень модно устанавливать подвесную технику, в том числе и сантехническое оборудование. Подвесное биде и унитаз выглядят намного дороже и облегчают уборку, но мало кто понимает, что это не единственный предмет, который придется купить. Еще понадобится приобрести инсталляцию и установить ее. Работы должны выполнять профессионалы, потому что при неправильной установке риск протечек возрастает. Унитаз можно купить напольный, а биде заменить на гигиенический душ. Последний обойдется намного дешевле и будет куда полезнее биде.
Как быстро сделать ремонт? Если площадь квартиры позволяет, то балкон можно оставить холодным, тогда отделочные работы будут дешевле. На лоджии или балконе можно не менять окна, если они в хорошем состоянии. Иногда их достаточно лишь утеплить, что значительно дешевле. Экономить на проводке нельзя при любом бюджете, особенно на балконе. Некачественные материалы могут привести к замыканию, а ведь на неутепленном балконе бывает влажно.
Чтобы не искать способы, как сделать экономно ремонт в квартире, стоит прислушаться к советам профессионалов. Дизайнеры давно говорят, что встроенные шкафы обходятся намного дешевле, чем отдельно стоящая мебель. При большой площади жилья можно самостоятельно сделать гардеробную. Из гипсокартона соорудить стены и прикрутить полки, поставить кронштейны будет довольно дешево. Вместо раздвижных дверей можно использовать плотные шторы. Подберите их в одной цветовой гамме с интерьером или сделайте акцентом комнаты.
Мебель лучше покупать не в бутиках или сетевых магазинах, а на рынках. Можно купить по-настоящему стоящие вещи практически за бесценок и самостоятельно привести их в порядок. На сайтах подержанных вещей тоже можно найти много объявлений о продаже. Мебель распродают рестораны и кафе, которые вынуждены закрыться. Это тоже существенно сэкономит бюджет. Вы сможете перекрасить старый стул или шкаф, но будете знать, что у этой вещи есть история.
Вместо дорогих дизайнерских предметов обратите внимание на предметы интерьера, сделанные своими руками. Художественную роспись, витражи или коврики можно сделать даже самим
Что-то можно заменить на похожие предметы. Например, вместо декоративных подушек из парчи положите на диван вязаные подушечки. Так вы точно будете уверены, что ни у кого похожего не будет.
В соцсетях много фотографий красивых интерьеров, и по ним можно судить, что хозяева выложили немалую сумму за эстетику. Обывателям кажется, что при скромных возможностях так не получится. Иногда достаточно поиграть со светом, чтобы создать ощущение дорогого дизайна. Освещение превратит скучный интерьер в загадочный, а интересные дизайнерские решения могут выглядеть обыденно при непродуманном свете. Перед тем как начать выбирать светильники, подумайте, сколько источников света вам нужно и какие функции они должны выполнять. Штробление дополнительных каналов для кабелей, покупка люстр и встроенных светильников означают дополнительные расходы, но если менять проводку все равно нужно было, то большой разницы в деньгах не ощутите. Можно удешевить ремонт тем, что купить обычные лампы вместо встраиваемых и расставить в нужных точках торшеры.
Услышала по громкой связи: «Женщина! Выйдите из ванны!
После возведения стен, встал вопрос о покупке материалов для чистовой отделки. Теперь Ольга признается, что за 2 года ремонта, у нее развился токсикоз на строительные магазины.
− От магазинов у меня реально начинала кружиться голова, болел живот и подступали слезы. Я съездила в «Ома» и «Материк», наверное, около сотни раз, или даже больше. И ситуации, конечно, были разные. К примеру, перед важными съемками мне нужно было срочно купить счетчики для теплого пола. Я знаю, что магазин работает с 8 утра и мчу туда прямо к открытию. Вхожу внутрь и узнаю, что хоть магазин и работает, продавцы-консультанты приходят только к 9. И вот ты стоишь там час в ожидании, в это время тебе звонят строители, которые ждут под дверью, а в голове еще звучит музыка с ночных съемок. Признаюсь, был такой момент, что я просто села в ванну в строительном магазине и заплакала от бессилия. Очнулась от того, что услышала по громкой связи: «Женщина! Выйдите из ванны! Соблюдайте правила поведения в магазине».
«Главное в ремонте – человеческий фактор. Деньги не решают ничего»
Сейчас ремонт в квартире Ольги практически закончен. Остались какие-то мелкие моменты – типа покупки шкафа в спальню и т.д.
Кстати, после переезда семья успела немножко увеличиться. Вдобавок к уже имеющейся собаке в квартире появились рыбка, улитка и хомячок.
− Конечно, было бы идеально, если бы над ремонтом работала одна команда. Потому что приходит электрик делает свое, потом приходит сантехник и говорит, что электрик сделал плохо. Потом приходит следующий и ругает двоих предыдущих. При этом один считает, что вот так правильно, другой − что вот эдак. И чтобы все это выдержать нужно адское терпение. Кстати, деньги в этом случае ничего не решают. Ни-че-го! Главное – человеческий фактор. Поэтому спасибо моему итальянцу, а также тем мужчинам, которые помогали мне покупать унитазы, ванны и бытовую технику. Без вас было бы сложно!
Следите за нами на
Важные правила
Чтобы ремонт стал по-настоящему бюджетным, необходимо соблюдать определенные правила:
Хозяева должны располагать временем в достаточном объеме, чтобы выполнять работы самостоятельно. Если вы никогда раньше не штукатурили стены, не прокладывали коммуникативные разводки, не устанавливали сантехнику, то понадобится намного больше времени, чтобы разобраться, что к чему. Логично начинать ремонт в выходные или во время отпуска. Не надо стараться все делать быстрее, лучше делать упор на качество. Адекватная оценка квартиры до начала ремонта. Как сделать дешево ремонт в квартире, если стены нуждаются в выравнивании, а пол — в стяжке? Краска не решит проблему кривых стен, а неисправные коммуникации все равно потекут, испортив уже сделанный ремонт. Это все к тому, что нельзя рассчитывать на совсем копеечные изменения. Лучше заранее учесть все возможные поломки, устранить их, чтобы не пришлось переделывать все заново. Можно сэкономить на декоративных материалах, но уж точно не на черновой отделке. Тщательно изучите ассортимент, цены во всех ближайших строительных магазинах. Расположение магазина тоже имеет значение, потому что доставка может оказаться дороже самих материалов
На совсем дешевые материалы не стоит обращать внимание, ведь в строительном бизнесе очень много подделок
Смету очень важно составить перед началом ремонта
Так вы потратите только то, что планировали, а не намного больше. Никогда не экономьте на общеопасных коммуникациях
Сюда относится электро- и газовое оборудование, которое должны монтировать только специалисты. Если прокладывать коммуникации самостоятельно, то в лучшем случае приборы просто не будут работать, а в худшем — может случиться трагедия.
Трендовые цвета для дизайна трехкомнатной квартиры

Актуальные дизайны 3-комнатных квартир 60 кв. м и более оформляются в четырех основных цветах. А именно:
- Теплый бежевый. Будет хорошо смотреться в любой комнате. Этот цвет — тренд 2021 года.
- Янтарный. Смелое решение для проекта детской или кухни. Заряжает энергией и позитивом. Не сильно распространен, поэтому будет выглядеть оригинально.
- Миндальный. Хорошо смотрится в спальне. Может быть как основным оттенком, так и дополняющим.
- Бирюзовый. Отлично подходит для детской и ванной. Создает успокаивающую обстановку, тем самым помогая расслабиться.
На заметку! Для 3-комнатной квартиры 70 кв. м выбираются больше темные оттенки, а менее 60 — светлые.


Идеальным работником оказался итальянец
В отчаянии Ольга обратилась за помощью в соцсети. В результате контактами нужного мастера поделилась певица Влада. Она только что закончила ремонт и с радостью передала своего работника коллеге. Специалистом широкого профиля оказался… итальянец. Фиорелло Филиппо Джованни не стал возмущаться работой предшественников, не завышал стоимость работ, а просто взялся за дело. Мужчина сделал штукатурку, положил ламинат и плитку. Периодически ему помогал белорусский коллега Дмитрий, который перебрал «вслепую» всю электрику, так как ее сделали неправильно. А вот обои в трех спальнях Ольга клеила вместе с мамой.
− Я обожаю клеить обои. Это мое тайное удовольствие. Я могу за ночь, когда у меня плохое настроение, поклеить всю комнату.
Интересно, что с приходом в квартиру итальянца Ольгу потянуло на все итальянское. Говорит, что сама не замечая, стала заглядываться на итальянские люстры, мебель и посуду.
− Вообще, с Италией у нашей семьи особые отношения. У нас с мужем (сейчас мне 41 ,а ему − 49) есть дети от первых браков. Мы были вместе уже более 10 лет и, конечно, думали об общем ребенке. И вот 4 года назад как раз через 9 месяцев после отдыха в Италии на свет появилась наша малышка Ариша. Сейчас Арише три годика.
Несмотря на то, что у квартиры на 11-м этаже – северная сторона, она кажется солнечной. Помогают этому 6 панорамных окон и светлый интерьер.
Правила оформления трехкомнатной квартиры
Для успешного завершения любого ремонта его необходимо осуществлять по тщательно продуманному плану. Если речь идет о трехкомнатной квартире, то здесь просто не обойтись без комплексного подхода, начиная с распределения квадратных метров и заканчивая расположением вещей в доме. При этом следует учитывать количество обитателей, их возраст, образ жизни, привычки и вкусы, физические особенности. Например, активная молодая пара может отдать предпочтение минимализму открытого пространства, в то время как семья с двумя детьми будет нуждаться в дополнительном зонировании комнат, вместительной столовой и кухне, большем количестве шкафов.
Коммуникации – первое, что следует установить до начала каких-либо отделочных работ. Разводка труб и электрических проводов должна быть сделана максимально точно и профессионально, чтобы снизить вероятность аварий. По этой же причине нельзя экономить на комплектующих деталях. Если они будут некачественными, то любая протечка воды или короткое замыкание может привести к значительной потере средств.
Утепление и звукоизоляция – второй важный этап ремонта квартиры. Для комфортной жизни обивка стен и потолков уплотняющим материалом и специальными мембранами нужнее, чем самые красивые обои или картины. Отделиться от уличного шума помогают современные металлопластиковые окна, которые, к тому же, препятствуют потерям тепла.
Выбор общего стиля вряд ли вызовет затруднения у владельцев трехкомнатной квартиры – в этом вопросе им можно положиться исключительно на свой вкус. Впрочем, рекомендуется соотнести особенности понравившегося дизайна с объективными характеристиками помещений: в маленьких комнатах отдать предпочтение лаконичным формам и нейтральным цветам, а в более просторных – использовать смелые акценты и яркую палитру оттенков.





Что делать, если дефект обнаружен после приемки квартиры
Некоторые недостатки могут проявить себя не сразу. О том, что в квартире, к примеру, высокая влажность, спровоцировавшая появление плесени, вы узнаете только через несколько месяцев, когда и акт приема-передачи подписан, и даже вещи в квартиру перевезены. В этом случае тоже можно заставить застройщика исправить ситуацию: он обязан предоставить гарантийный срок, в течение которого вы имеет право предъявлять претензии. По закону — не меньше пяти лет.
Порядок будет тем же: понадобится строительно-техническая экспертиза. Затем можно обратиться к застройщику, а если он ничего не сделает — идти в суд. В суде нужно требовать не только деньги на устранение недостатков, но и компенсацию проведения экспертизы, судебных расходов и даже морального вреда. Согласно разъяснениям Верховного суда, в этом случае будут работать общие правила закона «О защите прав потребителей» — моральный вред компенсируется независимо от имущественного.
При обращении в суд соберите пакет документов в нескольких экземплярах — для истца, ответчика и суда. Если истцов или ответчиков несколько, то каждому понадобится свой экземпляр.
Какие нужны документы для обращения в суд:
- исковое заявление в нескольких экземплярах;
- квитанция об уплате госпошлины за обращение в суд;
- договор долевого участия;
- акты осмотра жилого помещения;
- заключение строительно-технической экспертизы;
- досудебная переписка с застройщиком.
5 стилей для интерьера трехкомнатной квартиры в 2021 году
Сейчас популярными и актуальными стилями считаются почти все. Но предпочтения в готовых дизайнах 3-комнатных квартир отдают следующим:
- Скандинавский стиль. Пропитан модерном, скромен, полезен и экологичен. Подходит для любителей светлых тонов. А фанаты экспериментов даже сочетают в нем яркие краски. Он компенсирует недостаток солнечного света. Мебель с антикварными нотками — визитная карточка стиля.
- Лофт. Будет интересным решением для просторных 3-комнатных квартир 80 кв. м с высокими потолками. Любит большие пространства. Панорамные окна — одна из особенностей, которая выделяет это направление на фоне других. Для него не нормально скрывать несущие конструкции и бетонные стены. Он очень нестандартен, но при этом интересен, цепляет взгляд, выделяется на фоне других. Пусть он и не успокаивает, но дает свободу.
- Ресайкл. Ярым защитникам природы стоит остановиться именно на нем. Выбирают мебель строго из переработанных материалов. Полный отказ от тех элементов, которые вредят природе. Он пропитан бунтарским настроением, показательным отказом от роскоши и чувством свободы. Палитра разнообразная, в ней много ярких цветов. Направление очень яркое и броское.
- Джапанди. Баланс между японским и европейским мировоззрениями. Состоит из нейтральной палитры, использует только натуральные материалы. Склонен к минимализму. Любит солнечный свет. Упор на пользу.
- Ваби-саби. Простота — это то, что выделяет это направление на фоне остальных. Требует использования естественных материалов и спокойных оттенков. Палитра темная и холодная, напоминает пасмурную осень. Квартира оформляется так, чтобы можно было отвлечься от суеты и комфортно побыть наедине с собой. Стиль очень приближен к минимализму. Мебель выглядит просто, но в сочетании создает необычную атмосферу.
Где и как искать недостатки
Вдохновленные скорым переездом, вы можете невнимательно изучить новую недвижимость. Но квартир без дефектов практически не бывает, говорит юрист юридической фирмы «Мазка, Метелкин, Бушмин и партнеры» Андрей Хилажев.
«В первую очередь проверьте остекление, поскольку там часто бывают строительные недостатки. Еще проверьте, как закреплены радиаторы, как закрываются двери, нет ли там скоса, который препятствует закрытию, исправно ли работает вентиляция, канализация, водопровод, ровные ли стены и бетонная стяжка, — говорит юрист. — Если жилье с чистовой отделкой, добавьте к этому списку сантехнику, отделку плиткой, раковины, напольные покрытия, межкомнатные двери, состояние отделки стен
Даже если обои поклеили внахлест, это также является недостатком, на это можно обратить внимание застройщика»
Кстати, об обоях: иногда под ними или под кафелем пытаются скрыть дефекты стен, к примеру, трещины. Этого может не заметить человек, далекий от ремонта и строительства, но легко определит эксперт. Если не уверены в своих силах, то для приемки квартиры можно нанять специалиста, который проведет оценку.
«Раньше на этапе приемки никто не обращался к экспертам, сейчас это более распространено и делается, чтобы сразу указать в акте все недостатки. Чем больше фактов задокументировано и чем раньше это сделано, тем лучше, особенно если вы собираетесь обращаться в суд», — говорит юрист.
Можно ли отказаться от квартиры и вернуть деньги
Да, но не всегда. Для того чтобы полностью отказаться от квартиры и вернуть деньги, вы должны доказать, что недостатки существенны.
Специального перечня существенных и несущественных недостатков строительства нет, но здесь применяется общее правило: в законе «О защите прав потребителей» и в статье 475 Гражданского кодекса РФ сказано, что существенным считается «неустранимый недостаток или недостаток, который не может быть устранен без несоразмерных расходов или затрат времени, или выявляется неоднократно, или проявляется вновь после его устранения». В каждом конкретном случае оценку должна давать строительно-техническая экспертиза.
«После того как очередные строители сказали, что здесь нужно все сносить, я их выгнала»
Ольга рассказывает, что ремонт она делала дважды в жизни: 15 лет назад и сейчас. Оба раза это были абсолютно новые квартиры, работы в которых приходилось вести с нуля. Отличия состояли лишь в том, что первый раз это была квартира с планировкой (и в результате ее обустройства треть стен пришлось вынести), а теперь наоборот: квартира была без планировки и 30% жилья пришлось внести.
Дизайн-проект для новой квартиры Ольга выбирала, в том числе, и с помощью подписчиков в Инстаграме. В «финал» вышли два варианта перепланировки: один – с множеством уединенных уголков, второй – с открытыми пространствами в духе минимализма.
− Когда ты очень включен в процесс, бывает, сложно абстрагироваться. А люди со стороны мне подсказывали, как лучше. Наша кухня-гостиная в 40 «квадратов» получилась просто безумно обалденной!
В результате перепланировки в квартире площадью 90 «квадратов» появилась огромная кухня-гостиная и три небольшие спальни.
Поиском специалистов по ремонту и контролем их работы Ольга занималась сама. Говорит, что для того, чтобы найти нужного человека, пришлось сменить несколько бригад.
− Пришел один человек по знакомству. Говорит, сейчас я вам тут за тысячу рублей все стены поставлю. Я стала сравнивать. Спрашиваю тех, кто делал ремонт. Конечно, очень дешево, говорят, мы в 5 раз больше платили, соглашайся. В общем, на второй стене мы поняли, что для человека это, вероятно, его первый ремонт. Заплатили половину суммы и отказались от его услуг. Что делать? Сносить? А ведь у нас 11 этаж, а все эти блоки и 150 мешков цемента надо ж как-то заносить. Поняли, что разбивать стены не будем, пригласили другую команду. Ребята ругались, кряхтели, выравнивали и постоянно пугали меня, что все рухнет. В общем, я себя чувствовала, как неопытная девочка в автосервисе, которой рассказывают, что машина завтра взорвется, колеса отвалятся на ходу, двигатель вылетит через люк и т.д. Было неприятно. Мало того, что я уже заплатила не в 5 раз дешевле, а в 10 раз дороже, так мне еще и нервы треплют.
Идеи дизайна трехкомнатной квартиры в 2021 году
Можно рассмотреть и альтернативу, например нордический стиль. Пусть его и нельзя назвать чем-то новым, но он не теряет своей популярности на протяжении многих лет, подчеркивает самобытность. Ему свойственны скромность и оригинальность. Он содержит предметы с изъянами, также для него характерны растения в глиняных горшках. Некоторые ретровеяния точно улавливаются в скандинавском стиле, тем самым согревая душу чувством ностальгии. Деревянная мебель подстраивается четко под этот стиль.
Нельзя забыть и про этнический дизайн 3-комнатной квартиры, фото которого часто выставляются на обложках журналов. Он не любит смешиваний, поэтому стоит остановиться на каком-то конкретном материале. Большим фанатам туризма он будет уместен. Оригинальные сувениры, такие как японские веера, индийские статуэтки и тому подобное, обогатят и насытят современный дизайн 3-комнатной квартиры. Они выступят как точечное дополнение к уже имеющемуся интерьеру за счет необычных образов. Например, дизайн панельной 3-комнатной квартиры, выполненный в охотничьем стиле, будет выделяться на фоне множества других, создавая ностальгические нотки.
Основные правила разработки дизайна трехкомнатной квартиры — советы дизайнера
Необходимо подойти к зонированию правильно. Трехкомнатная, особенно квартира-распашонка, — просторное помещение, и при планировании оборудования всей этой территории стоит учесть наличие обязательных зон:
- спальня;
- детская;
- кухня;
- зона отдыха;
- ванная.
Необходимо учитывать возраст жильцов, а также род их занятий. Берут в расчет и размер кухни, коридора с прихожей при планировке других комнат. Не стоит бояться смелых решений, объединение комнат может полностью изменить восприятие и преподнести приятный сюрприз.
Учитывают высоту потолков. Ни в коем случае не планируют спальню в проходных комнатах, так как они убивают ощущение уюта и уединенности. Продумывают интересное освещение. Светильники в необычных местах создадут правильную атмосферу. Не устанавливают много мебели в прихожей.
Таким образом, дизайн 3-комнатной квартиры 80 кв. м или любой другой — это серьезный проект, к которому стоит подходить с умом. Нужно составить четкий план и выбрать стиль, понравившийся больше. В квартире должна царить та обстановка, которую хотят чувствовать. Нельзя забывать и о том, что даже маленькие штрихи могут сильно менять атмосферу. Не стоит бояться экспериментировать и применять необычные решения. Возможно, именно они придутся по душе.
Советы бывалых
Несмотря на то что крашеные стены можно мыть, не надо платить больше за возможность влажной уборки. Сейчас есть много моющихся обоев, которые стоят намного дешевле качественной краски. Если выбирать между краской и керамической плиткой, то первая намного дешевле. Значит, можно в ванной не выкладывать кафель, а покрасить стены. Причем нужно выбирать влагостойкую краску, ведь в комнате повышенная сырость, из-за которой простое покрытие облезет и потрескается.
Натяжной потолок – это не самая дешевая замена, тем более что подвесные потолки съедают высоту комнаты. В качестве бюджетного потолочного покрытия подходит водоэмульсионная краска. В этом случае сэкономленные деньги можно потратить на мебель или декор.
Варианты перепланировки и зонирования в трехкомнатной квартире
Перепланировка трехкомнатной квартиры может оказаться довольно сложным делом; некоторые типовые планировки практически не подлежат изменениям из-за расположения несущих стен или длинных коридоров, а также колонн или просто маленькой площади. Тем не менее мы собрали для вас актуальные и удачные планировки с практичными идеями, которые могут вам понравиться.

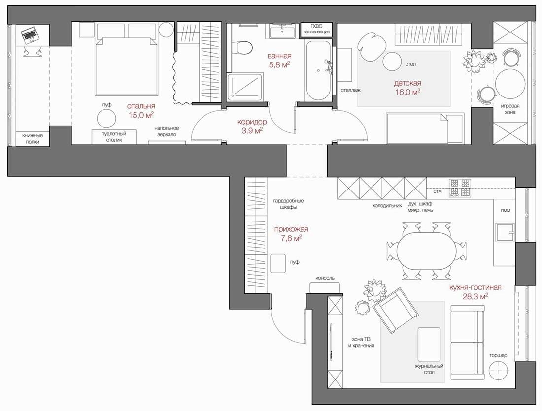
В этом варианте перепланировки, кухню (8 кв. метров), гостиную (20 кв. метров) и прихожую (7,6 кв. метра) объединили в одну комнату, которая получилась очень просторной и с двумя окнами.В детской и спальне лоджии присоединены, там образовались кабинет и игровая комната.Ванная комната расширена за счет одной из спален, теперь здесь есть и ванная чаша, и душевая кабина.Кухонный гарнитур поставлен таким образом, чтобы раковина находилась напротив окна, что очень удобно, а зона для ТВ встроена в нишу.

Эта практичная планировка трехкомнатной квартиры площадью 110 квадратных метров имеет две спальни, в каждой из которых есть ванная комната и гардеробная. Кухня не имеет окна, но спроектирована в американском стиле – с островом и столовой на четыре персоны. В гостиной двери на балкон решены в формате дверей-слайдеров со стеклами от пола до потолка.

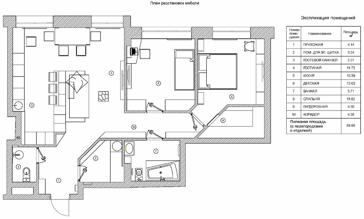
Эта планировка трехкомнатной квартиры вполне типична для новостроек Москвы. Гостиная и кухня были объединены, на месте прихожей расположилось помещение для электрощитка, по совместительству – гардеробная. Также есть гардеробная при главной спальне и гостевой туалет.

Еще один вариант перепланировки трехкомнатной квартиры реализован в интересном формате. На месте, где раньше была кухня, теперь расположились гостевой дополнительный туалет и прачечная, на месте прихожей – кухонный гарнитур. Кухня и столовая объединены. На плане в правой части квартиры расположены две спальни, каждая с ванной комнатой и встроенными шкафами-купе. А при гостиной большая лоджия оформлена в стиле патио с диванчиком и летней столовой.

Еще одна удачная планировка трехкомнатной квартиры имеет по гардеробной в каждой из спален и две ванные комнаты. Столь расширенный формат стал возможен благодаря размещению кухни в зоне прихожей и устранению коридора как такового. Теперь здесь есть лишь проходная зона между кухней и гостиной, с обеих сторон острова.

Проблема квартир с длинными коридорами в том, что в них зачастую очень сложно сделать перепланировку, так как вариантов расположения комнат не так уж и много. Но в данном варианте, обе спальни получили встроенные гардеробы, хозяйка – отдельную прачечную и кухню-гостиную открытой планировки, а в прихожей теперь есть встроенный шкаф для одежды.

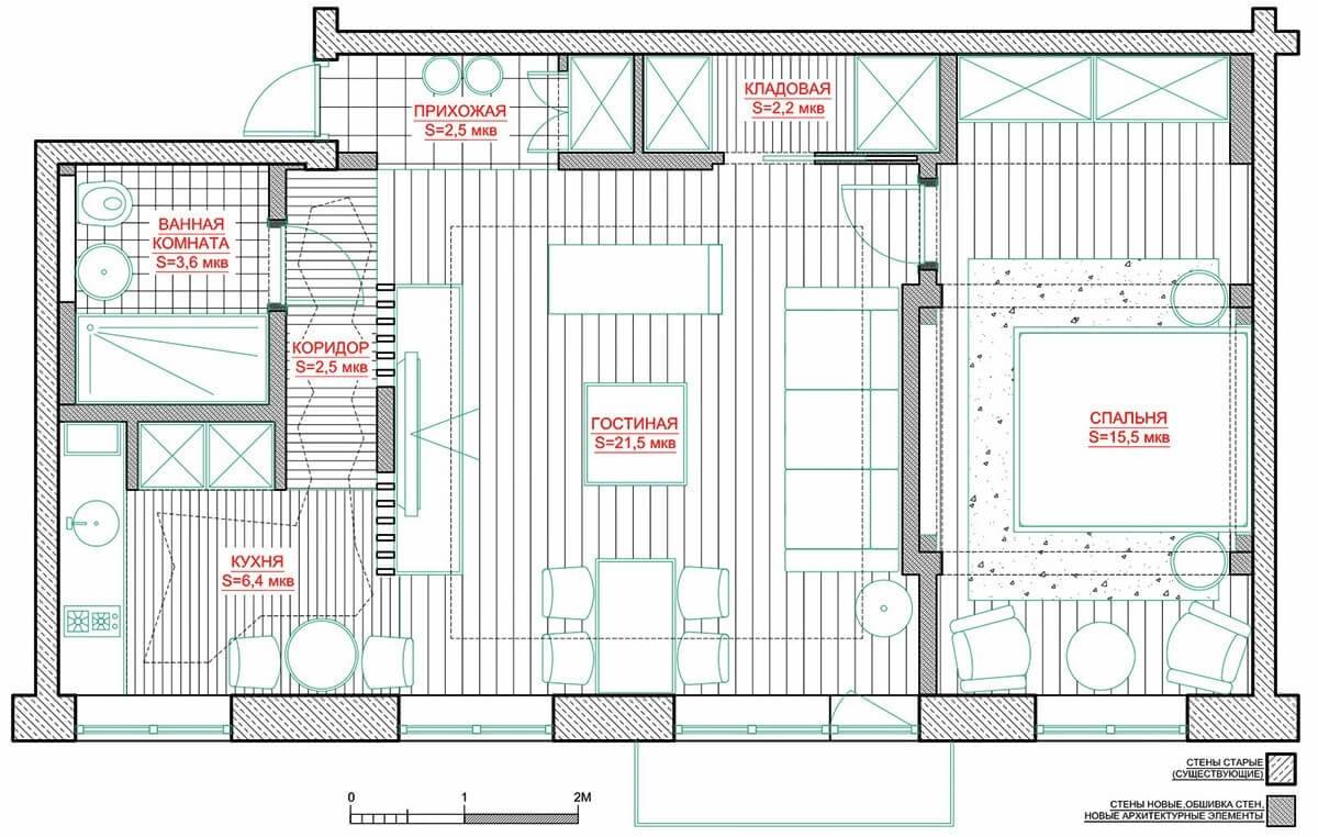
В данном случае трехкомнатная квартира в хрущевке стала двухкомнатной. Спальню в 6 квадратных метров, которая в некоторых случаях в пятиэтажках также является кладовой, сделали частью главной спальни, которая теперь располагает площадью в 15,6 квадратных метров.

Заключение
Как видите, не так сложно сделать недорогой, но достойный ремонт. Прежде чем искать, как экономно сделать ремонт в новой квартире, посчитайте финансы.
Правильный ремонт начинается со сметы. Расчеты не позволят выйти за рамки бюджета и купить что-то лишнее. Если не составить смету, то велик риск выйти за рамки или набрать ненужного.
Дизайнеры тоже советуют много полезного. Не старайтесь выкинуть мебель, декор. В условиях ограниченных средств ищите возможность переделывать вещи, давать мебели новую жизнь. Таким образом вы сможете не только сделать свой интерьер уникальным, но и развить собственный вкус.
Не бойтесь экспериментировать во время ремонта, ведь это ваша квартира и она должна стать комфортной. Красиво можно сделать за любые деньги, ведь не в деньгах дело, а в желании, стремлении, умении. Воплощайте самые смелые идеи, черпайте вдохновение отовсюду. Удачи в ремонте!





































