Перепланировка однокомнатной квартиры в двухкомнатную

Если вам хочется переделать вашу однокомнатную квартиру в двухкомнатную, то у нас есть для вас несколько очень удобных и практичных вариантов. Правда, помните, что перепланировка однокомнатной квартиры как таковая стоит от 600 тысяч рублей (проект, согласование, работы по монтажу и демонтажу, утеплению лоджии) плюс сам ремонт без мебели (500-1000 тысяч рублей).

Но ведь вы можете взять эти 1-1,5 млн рублей и добавить к стоимости квартиры, чтобы просто совершить сделку обмена или купли-продажи.
Перепланировка однушки в двушку с отдельной кухней

Самый популярный вариант перепланировки однушки в двушку подразумевает расположение спальни у окна в жилой комнате и гостиной – в той же комнате, только в зоне без окна. Между ними ставится стеллаж, стеклянная или гипсокартонная перегородка. Таким образом вы получаете гостиную без окна, но отдельную спальню. При этом в кухне может быть оставлен диванчик.

То же самое можно сделать с квартирой с нишей, если оставить диван у окна, а спальное место – в нише. Эту планировку нельзя назвать двухкомнатной, но все-таки она более удобна, чем традиционные варианты.

Также вы можете поставить зону с диваном у окна, а спальню оставить без окна, но поставить витражную или гипсокартонную перегородку между этими пространствами. Во всех этих вариантах кухня остается «целой и невредимой», с той же самой планировкой. Правда, лучше присоединить лоджию к комнате или кухне.
Перепланировка из однокомнатной в двухкомнатную с отдельной спальней без окна

Если вам точно нужна самая настоящая отдельная спальня, то есть еще один вариант перепланировки однушки в двушку. Так как кухню нельзя располагать в гостиной, а спальню нельзя располагать в кухне, вариантов остается не так уж много.
Здесь вы разделяете жилую комнату на гостиную (у окна) и спальню (в нише), но объединяете коридор, кухню и ту зону гостиной у окна, чтобы сделать из 42-метровой квартиры двухкомнатную. Перегородка между спальней и гостиной может быть стеклянной, деревянной, гипсокартонной, тканевой.

Посмотрите, как выглядит такая перепланировка с тканевой перегородкой на фотографии выше. Вы получаете отдельную спальню, стильную и красивую, которая при этом может быть легко спрятана от посторонних глаз.
Перепланировка из однушки в двушку с кухней без окна

Данная перепланировка однушки в двушку подходит лишь для гостиной, в которой было два окна. Одно окно отдается спальне, другой – непосредственно гостиной, а кухня остается на своем прежнем месте, но присоединяется к гостиной. Она может быть как с окном, так и без, как было в вашей изначальной планировке. При этом помните, что можно установить кухню в коридоре или прихожей. Если вы живете на последнем этаже, то спальню можно разместить в кухне.
Вот так может выглядеть ваша квартира, если в коридоре вы поставите кухню, присоедините к ней гостиную, при этом в кухне сделаете спальню (напоминаем еще раз – только на верхнем этаже дома).
Если же при вашей гостиной был длинный коридор, то кухня в нем может разместиться вот так:

На планировке ниже перепланировка произведена интересным образом. Кухня разделена на кухню и спальню (последний этаж дома!), спальня получила присоединенную лоджию, кухня – выход и присоединение к коридору. Гостиная (жилая комната) осталась на прежнем месте, так же, как и ванная.
Еще один вариант кухни-гостиной, который выглядит очень современно и стильно. Такую перепланировку можно сделать на первом этаже дома, если под вашей жилой комнатой не находится жилое помещение.
Перепланировка однушки с нишей

Данная перепланировка законодательно возможна, только если вы живете на первом этаже, и под вашей жилой комнатой нет жилых помещений. Тогда в своей нише вы можете расположить кухню, а спальню перенести в вашу кухню. Правда, определить его придется как «кабинет», а не «жилую комнату» (что отразится на жилой площади квартиры в техпаспорте), так как спальню под чьей-то кухней официально сделать нельзя.

Отличный вариант перепланировки однушки с нишей можно увидеть ниже. Ниша делится на гардеробную и спальню. Гардероб примыкает к коридору, а спальня – к гостиной. Кухня объединяется с гостиной, при этом кладовая остается на месте.

Если вы объединяете кухню, комнату с нишей и коридор, то вы можете продублировать объемы ниши с помощью декоративных перегородок. Все это будет смотреться очень стильно и современно.
Цели и виды переустройства
Перепланировка 1 комнатной хрущевки приходит к её владельцу либо сразу по приобретении жилья, либо через год-два, при изменении личных обстоятельств (создание семьи, рождение ребёнка, переезд для ухода за престарелым родителем).
Целью переустройства стандартного помещения могут стать:
- Потребность в увеличении свободного пространства.
- Необходимость создания функциональных зон.
- Переустройство квартиры в студию (и наоборот).
- Разделение жилой площади на две изолированные комнаты.
Ознакомьтесь — перепланировка студии в однокомнатную квартиры.
Для достижения цели можно выбрать один из регламентированных законодательством (Жилищным кодексом РФ или ПП Москвы №840 от 26.12.2012 года) способов улучшения условий проживания. В настоящее время Мосжилинспекция установила 4 вида перепланировок, принятых для всех регионов РФ:
- разрешённые (без согласования);
- согласованные в уведомительном порядке;
- согласованные на основании проекта;
- запрещённые.
Существенно упрощает процесс переустройства внутреннего пространства помещения «Каталог типовых вариантов перепланировок», собранных в альбом.
Обращение к материалам такого альбома сокращает сроки подготовки проекта.
А также позволяет бесплатно воспользоваться целым пакетом сопроводительных документов.
Рекомендуем изначально ознакомиться с существующими правилами перепланировки.
Это позволит не попасть под юридическую ответственность за незаконную перепланировку квартиры и дополнительные расходы по их устранению .
Варианты перепланировки
Получить две комнаты в однокомнатной квартире возможно несколькими способами. Важными критериями выбора будет назначение каждого помещения, требуемая жилая площадь, количество окон и первоначальная планировка.
Разделение комнаты
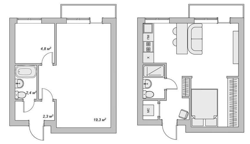
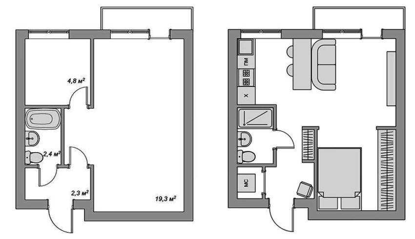
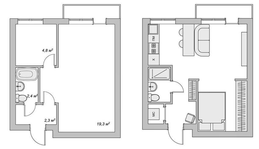
Первым и самым простым способом организации двух комнат будет разделение одной комнаты на две. Идея вполне реализуема, не требует особого разрешения и достаточно бюджетная. На 17-20 квадратных метрах можно получить два приличных помещения. Единственный недостаток – одно из них будет без окна. Однако для организации спального места оно вполне подойдет.
Разделение одной комнаты на две позволит сделать из однокомнатной квартиры двухкомнатную с кухней, раздельным санузлом и коридором. В законе нет комментариев по этому поводу, что позволяет начать ремонт в любой момент.
Кухня-столовая
Этот вариант более сложный, но лучше подойдет для молодых семей. Он подразумевает объединение части жилой комнаты и кухни в одну кухню-столовую. Подобный вариант возможен, если между ними стена не будет несущей. В противном случае требуется разрешение на ее снос, получить которое достаточно проблематично.
По закону помещение признается жилым, если его площадь более 9 квадратных метров и в нем присутствует естественное освещение.
Главной проблемой перепланировки кухни становится газовая плита. Расширение ее пространства или объединение с другими комнатами в подобном случае практически невозможно. Владельцам электрических плит разрешение выдают охотнее.
Перенос кухни и санузлов
Сразу оговорим, что идея о переносе кухни в коридор является нереальной. В законодательстве прописано, что подобные действия нарушают установленные санитарные требования:
- перенос газовой плиты;
- отсутствие естественного освещения;
- перенос «мокрых» зон.
Перенести кухню в прихожую можно только на первом этаже, если есть возможность пристроить отдельный вход в квартиру. Конечно, сложностей с переносом воды и газа не избежать. Можно плиту поменять на электрическую, а вот для воды придется дополнительно прокладывать коммуникации.
Комната в лоджии
Большую лоджию легко переделать в жилую площадь. В квартире будет отдельно спальня или кабинет и студия с кухней. Современная планировка однокомнатных квартир большой площади позволяет сделать из лоджии третью комнату.
Строительные работы будут заключаться в следующем:
- утепление;
- монтаж раздвижных перегородок.
Последний пункт можно избежать, если подоконник оформить в виде барной стойки. Единственное ограничение – запрет на перенос батарей отопления.
Объединение кухни и гостиной
Ранее упоминалось, что снос стены между кухней и гостиной возможен только, если она не является несущей. Например, разрешение получено. Следующим этапом будет разделение комнаты на две части и объединение одной из них с кухней. Но как обеспечить освещение более темной комнаты, если в ней нет окон? Есть два способа:
- Не делать перегородку до самого потолка. Свободное пространство обеспечит естественное освещение. Минус – полное отсутствие звукоизоляции.
- В перегородке предусмотреть не только шкаф и дверь, но и окно.
Два этажа
Организовать второй этаж в квартире могут только владельцы квартир, высота потолка которых более 3,5 метра. Увеличение этажности не требует получения разрешения и сноса стен. Половина пространства имеет два уровня. На верхнем можно устроить кровать, что достаточно романтично. Каждый угол будет иметь естественное освещение.
Перепланировка хрущевки
Хрущевки – панельные (реже – кирпичные) пятиэтажные дома с малогабаритным жильем. Путем изменения внутренней планировки удается увеличить комфорт проживания.
В однокомнатных квартирах практически единственным способом расширения жилого пространства становится объединение кухни и комнаты – проект, подразумевающий полный снос перегородки, может быть отклонен, поэтому скорее всего придется ограничиться частичным ее удалением. Размер санузла удастся увеличить за счет коридора.
Для семьи, где есть дети, студия не подойдет – напротив, потребуется выделить им отдельную зону. Отгородить детскую можно с помощью частичной перегородки, раздвижных панелей.
В двухкомнатной квартире появляется больше пространства для экспериментов. Помимо объединения гостиной с обеденной зоной и коридором, это расширение комнаты, выделение с помощью прозрачной перегородки кабинета, разделение смежных помещений (проще всего выполнить это при планировке по типу “трамвай”).
6 распространённых вариантов законной перепланировки помещения
Теперь рассмотрим варианты проектов перепланировки однокомнатной квартиры в двухкомнатную. Вообще, сделать из одного помещения два намного проще, чем наоборот – и в плане законности, и по проведению ремонтно-строительных работ. Кстати, одним из вариантов перепланировки является зонирование, которое осуществляется достаточно легко, и позволяет просто и быстро изменить интерьер помещения.
Сделать из одной комнаты два отдельных помещения не сложно
Вариант №1: гипсокартонная перегородка
Разделение одной комнаты на две при помощи гипсокартонной перегородки – довольно распространённый вариант. Такая конструкция не оказывает существенной нагрузки на пол. Перегородка не требует больших материальных затрат и собирается сравнительно быстро. Единственный недостаток такого варианта заключается в том, что одно получившееся помещение будет лишено естественного освещения. Однако здесь можно обустроить спальню, а недостаток света компенсировать установкой достаточного количества осветительных приборов. Гипсокартонные перегородки – хороший вариант для перепланировки, особенно если это квартира-студия.
Разделение одной комнаты на две при помощи гипсокартонной перегородки
Вариант перепланировки при помощи гипсокартонных конструкций
Вариант №2: на помощь придут стеклоблоки
Если сплошная гипсокартонная перегородка ограничивает доступ естественного света в одну из зон, то можно решить эту проблему с помощью конструкции из стеклоблоков. Подобная конструкция возводится довольно быстро, имеет хорошую светопропускную способность и эстетичный внешний вид. К тому же в ней можно устроить декоративную светодиодную подсветку. Стеклоблоки отличаются более высокой прочностью, чем гипсокартон.
Разделение помещения при помощи стеклоблоков
Визуализация перепланировки
Вариант №3: мебель как строительный материал
Сделать перепланировку однокомнатной квартиры можно при помощи зонирования, а именно – используя предметы мебели. Это довольно хороший вариант, поскольку, например, установка шкафа позволяет не только разграничить пространство, но и использовать его по прямому назначению – для хранения вещей. Также это может быть не только шкаф, но и диван, стеллаж или высокий комод. Подобный способ позволяет легко и быстро изменять интерьер в случае необходимости и не требует каких-либо разрешений.
Зонирование посредством стеллажа
Перед планировкой нужно создать план или компьютерную визуализацию
Вариант №4: раздвижные межкомнатные перегородки
Использование раздвижных межкомнатных перегородок – довольно популярный способ сделать из одной комнаты две функциональные зоны. Можно использовать конструкции с глухими, зеркальными или матовыми стеклянными фасадами. Раздвижные перегородки легко монтируются, имеют прекрасный внешний вид и подходят практически к любым интерьерам.
Раздвижные межкомнатные перегородки из матового стекла
Подробная визуализация перепланировки при помощи раздвижной перегородки
Вариант №5: используем площадь лоджии или балкона
Сделать ещё одну комнату в квартире можно за счёт присоединения площади балкона или лоджии. Для этого нужно демонтировать часть стены, в которой располагается оконный и дверной блок. Также требуется застеклить и утеплить лоджию или балкон. На полученном пространстве можно устроить спальню или кабинет.
Спальное место на лоджии
Чертёж перепланировки
На плане красным цветом отмечен демонтаж оборудования, дверей и перегородок, а синим – перенос и возведение новых элементов.
Вариант №6: делаем второй этаж
Данный вариант подходит для квартир-студий с потолками высотой более 3 метров. В помещении устраивается второй или антресольный этаж, на котором можно расположить спальню или рабочее место. При создании второго яруса в квартире требуется разрешение БТИ. Обустройство антресолей – дело серьёзное, поскольку всё должно быть надёжным и соответствовать всем существующим нормам безопасности. К тому же второй этаж создаёт значительную нагрузку на пол, правда, распределяемую равномерно.
Кабинет на антресолях в квартире-студии
Создание второго этажа – отличный вариант для квартир-студий
Варианты, идеи перепланировки однокомнатной квартиры в студию

Перепланировка однокомнатной квартиры площадью 18-45 (30, 33, 35, 36, 37, 40, 44, 45) квадратных метров в студию сейчас очень распространена. Вы получаете открытое пространство с двумя или даже тремя окнами, просторное и светлое.

При этом вы можете легко выделить спальню-нишу в главной комнате, если вы захотите это сделать, но гостиная (зона дивана) и кухни (гарнитура и стола) будет единым целым. Также в нишу можно выделить детскую, или же разместить спальню или детскую на утепленной лоджии, все равно сделав квартиру студией.
Правда, стоит помнить, что зона кухни может быть только над кухней, коридором, лоджией или ванной, но не может быть – над гостиной или спальней. А вот если ваш этаж первый, кухня может быть где угодно. Но спальня все равно не может быть под чьей-то кухней!
Однокомнатная квартира-студия с нишей с кроватью и диваном

Первый вариант расстановки мебели – это объединение комнаты с нишей и кухни. В итоге вы получаете раскладной диван (спальное место ребенка), кровать в нише-спальне (для родителей) и просторную зону гостиной-кухни для приема гостей в дневное время. Прихожая остается отдельной комнатой. Посмотреть пример такого дизайна можно ниже:

Несомненно, планировка однокомнатной квартиры-студии выглядит обычно очень современно. Такие квартиры ценятся на рынке, но имеют куда меньший спрос. Тем не менее, найдя правильного покупателя, и такую квартиру можно продать по хорошей цене.
Студия на троих (для семьи с ребенком)

Если у вас есть ребенок, то в своей квартире площадью в 20-40 кв. метров вам наверняка захочется выделить приватные места для каждого члена семьи. Как мы уже говорили, спальню или детскую можно вытеснить на присоединенную и утепленную лоджию. Либо сделать подиум, чтобы из-под кровати родителей выдвигалась еще одна детская кроватка. А от детской зоны подиум можно закрыть стеклом, гипсокартоном или занавеской. Кстати, ребенок может спать на раскладном диване возле кровати.
Планировка такой студии может выглядеть по-разному. Кухня может быть отделена гипсокартоном, стеклом или барной стойкой от спальни-гостиной либо открыться им навстречу с помощью острова. Вот вариант планировки квартиры на троих (слева – кровать родителей, справа – диван для ребенка) в планировке студии площадью 40 квадратных метров:

Если же в вашей квартире нет 40 квадратных метров, вы можете подумать о вот такой перепланировке квартиры площадью 30 квадратных метров. Особенно хорошо она подойдет для квартир старого фонда. Конечно же, варианты, применимые к вашей планировке, будут отличаться от рисунка, но его легко подстроить.
Однокомнатная квартира-студия с кроватью и без дивана

Если же в квартире вы живете один (или одна) или вдвоем, то вам возможно подойдет вариант даже без дивана, но с роскошной кроватью шириной 180 сантиметров! Неплохая идея, не правда ли? Например, возле нее можно поставить козетку, поставить телевизор так, чтобы смотреть его с кровати (истинное наслаждение!), а кухню объединить с комнатой, чтобы ощущение простора было более полным.

Вот так будет выглядеть ваша однокомнатная квартира площадью 30 квадратных метров после перепланировки в студию без дивана (планировка ниже). В данном случае план относится к фотографии, которую мы представили выше. Коридор объединен со спальней, а кухня (в прошлом – 4 квадратных метра) теперь является красивой нишей.
Дизайнерские приемы для расширения пространства
Выполняя дизайн однокомнатной хрущевки, специалисты советуют особое внимание уделять пропорциям применяемой мебели. В небольшом помещении плохо смотрится громоздкая тяжеловесная конструкция. Поэтому лучше исключить большие столы и шкафы, а использовать более мелкие аналоги
Поэтому лучше исключить большие столы и шкафы, а использовать более мелкие аналоги.
При оформлении хрущевки откажитесь от громоздкой мебели
Приведенные ниже правила всем известны, но при выполнении таких работ, как дизайн однокомнатной хрущевки соблюдать их просто необходимо:
1. Используйте для покрытия поверхности только светлые тона. При этом придерживайтесь следующего правила: самыми светлыми должны быть стены. Потолок может быть на тон темнее. А вот пол допускается более темного оттенка. Использовать белый цвет — отличная идея. Но у него есть масса оттенков, чтобы визуально придать помещению большие размеры.
Отделка стен светлого света визуально увеличит пространство
2. Оттенок для поверхностей выбирайте с учетом создаваемого настроения: бодрящего, радостного, умиротворяющего.
3. Для помещения не стоит использовать более трех базовых цветов. Этого известного правила в масштабах небольшой площади лучше придерживаться, чтобы визуально не загромождать пространство и не превращать его в склад вещей и мебели.
При оформлении не используйте более трех базовых цветов
4. Постарайтесь избегать крупных рисунков и принтов на поверхностях. Если возникла необходимость, применяйте рисунок выборочно, на одной или нескольких сторонах, остальные оставьте окрашенными в подходящие под рисунок расцветки.
5. Увеличить пространство позволяет применение зеркал
При их размещении обратите внимание, чтобы в отражаемые поверхности не попала рабочая зона
Используйте зеркальные поверхности для визуального увеличения пространства
6. Не украшайте подоконники традиционными горшками с цветами. Они только порежут пространство и сделают его меньше.
7. Ничто так визуально не увеличивает просторы, как дополнительный свет. Он может поступать из окон, для этого не загромождают оконные проемы и не создают препятствий на пути солнечного света. Не скупитесь на искусственное освещение. В противном случае комната может приобрести вид кладовки.
Пустые оконные проемы не препятствуют проникновению света
8. Хорошее дизайнерское решение, которое помогает значительно расширить помещение, это на одной стене разместить 3D обои с перспективой — рисунком, уходящим вдаль.
3D обои помогут расширить пространство комнаты
Эти технические приемы помогают расширить пространство и придать ему визуально большие объемы. Но это не единственные способы увеличить помещение.
Функционализм интерьера в квартире
В свое время именно в функционалистском духе видели обстановку хрущевок их разработчики. Да, стереотипы, унаследованные от сельского образа жизни, привели к их загромождению.

Но в XXI веке можно раскрыть полноценно изначальный замысел.

Обстановка в таком духе отличается:
- Выбором простых геометрических форм;
- Превращением дома в «машину для жилья»;
- Технологичностью облика;
- Предпочтением гладких мебельных фасадов, открывающихся одним нажатием;
- Отсутствием любых деталей и предметов, без которых нельзя обойтись;
- Прямыми контурами;
- Трансформирующейся мебелью;
- Упором на простые материалы, не нуждающиеся в особом уходе.

Также функционалистская обстановка может включать:
- Открытые участки бетона;
- Хромированные изделия;
- Выразительные включения синего, красного или желтого цвета.

Большая «однушка» с двумя окнами
Однокомнатная квартира не обязательно должна быть крошечной. Большое помещение с двумя окнами по короткой и длинной стенам позволяет сформировать комфортное пространство для жизни, выделив для спальни отдельную небольшую комнатку.
Начинают перепланировку с удаления перегородки между кухней и комнатой. Часть помещения с окном по длинной стене выгораживают шкафами, создавая приватную спальную зону. Промежуток между свободными стенками шкафов оформляют при помощи диагональных секций. Расположенная напротив спальни кухня отделяется от остального помещения барной стойкой. Стойку располагают параллельно диагональным секциям шкафов, чтобы создать геометрически правильный проход. При таком зонировании окно на короткой стене становится окном гостиной. Если вместо окна предусмотрен балкон, гостиная становится визуально еще шире, кажется просторнее.
Сэкономить пространство санузла поможет замена ванны на душевую кабину. Стиральную машину размещают под столешницей, в которую врезают раковину для умывания. Над столешницей располагают навесные шкафчики для предметов гигиены.
Распланированная таким способом площадь подойдет для семьи из 2 человек, любящих проводить время дома. Плюсом дизайнерского решения станет возможность уединиться в спальной зоне, комфортная гостиная, пригодная для приема гостей. К минусам приходится отнести отсутствие обеденной группы, которую барная стойка полностью заменить не может.

Квартира-студия
Рассматривая варианты перепланировки однокомнатной квартиры, обязательно обратите внимание на вариант с квартирой-студией. Это замечательное решение для малогабаритной квартиры
К тому же, такой тип жилья в наше время очень популярен. Чтобы подобная перепланировка была реализована, нужно внести следующие изменения.

В первую очередь нужно полностью снести перегородку между комнатой и кухней. Таким образом, из малогабаритной квартиры мы получим огромное свободное пространство, на котором реализуем не только гостиную, но еще и кабинет, детскую зону.
Поскольку теперь прихожей как таковой у нас нет, нам нужно организовать у входа комфортное место для снятия обуви и верхней одежды. Для этих целей возле двери можно поставить шкаф-купе. Старайтесь выбирать самый просторный и функциональный шкаф, в котором вы будете хранить не только обувь и верхнюю одежду, но и все прочие вещи. Так вы сможете сэкономить место в жилой части помещения.

Ванную комнату и санузел трогать не нужно. В однокомнатных квартирах они и так не слишком просторные, поэтому украсть дополнительное пространство из ванной не получится, да и лишняя морока с переносом сантехники вам не к чему. Итак, сантехника остается на свих местах возле стояков. Из изменений рекомендуется добавить в углубление возле ванны функциональную консоль для банных принадлежностей.
Чтобы разделить кухню и жилую зону используем, во-первых, напольное покрытие (на кухне плитка, в жилой зоне – любое другое, на ваш выбор), во-вторых, барную стойку и пару красивых высоких барных табуретов. В кухонной зоне устанавливаем все необходимое для работы – холодильник, плиту, мойку, столешницу. Под столешницу монтируем бытовые приборы, например, стиральную машину.
С другой стороны от барной стойки располагаем диван и пару стеллажей с книгами, журналами и аксессуарами. В сложенном виде диван будет служить гостевой зоной, в разложенном – спальной.
Непосредственно возле окна мы будем оборудовать рабочее место. Для этого нужно использовать подоконник. Если вы часто работаете дома, и во время работы вам нужно полноценное уединение, отделите рабочую зону с помощью раздвижной перегородки. В дальнем углу у нас остается место для детской зоны. Там мы установим детскую кроватку и пеленальный столик. Чтобы малыш мог спокойно отдыхать, кроватку отделяем от общего помещения с помощью текстильной занавески.

Как обустроить спальню
В двухкомнатных хрущевках спальня выступает отдельной комнатой. Дизайнеры используют в этом помещении аналогичные хитрости – стены светлых тонов и зеркальный потолок. Благодаря этому легко добиться зрительного увеличения пространства.

Что разместить из мебели в маленькой спальне? Основным предметом станет кровать. Рядом с ней рекомендуется поместить небольшую тумбочку для хранения личных предметов.

Не стоит загромождать комнату крупной мебелью, например шкафом. При необходимости, допускается использовать небольшой комод. Верхнюю одежду можно разместить в коридоре, поместив её в шкаф-купе.
Огромное внимание стоит уделить освещению в спальной комнате. Подходящим вариантом станет размещение светильников на тумбочке или на поверхности пола

Актуальные идеи
Рассмотрим первый вариант. Если в вашем распоряжении находится квартира с жилой комнатой, имеющей два окна, вполне возможно сделать из одного помещения гостиную и спальню. Для этого убирается часть стены, разделяющая кухню и спальню, а по центру комнаты устанавливается новая перегородка так, чтобы каждая из частей имела окно, а площадь спальни была больше 9 квадратов. Спальню удается немного увеличить, заняв часть коридора. В результате мы получаем полноценную двухкомнатную квартиру.
Выше мы говорили о том, что кухню и гостиную соединять нельзя. Но это условие оказывается относительным. Его можно исключить, если кухонное пространство оборудовано электроплитой, а не газовой техникой.
Такая идея подойдет для молодой семьи, испытывающей потребность в нескольких комнатах.

Второй вариант – убрать стену между кухней и жилой комнатой, установить вместо нее не капитальную перегородку. Это могут быть двери-пенал, которые в открытом состоянии позволяют объединить два пространства. Также есть возможность расширить санузел. Чтобы это сделать, нужно просто убрать стену, которая разграничивает ванную и туалет, а также забрать часть коридора. Последний после перепланировки уменьшится, вместо того санузел станет более просторным.
Такой вариант актуален для молодой пары или одного жильца. Выглядит в таком варианте перепланировка однокомнатной квартиры на фото весьма привлекательно и оправдано. Главное – доверить проведение работ опытным специалистам.

Мы рассмотрели два основных варианта, которые подойдут для решения имеющейся задачи лучшим образом. Но есть еще много идей изменения планировки. Все зависит от изначального проекта, по которому строился дом, количества окон, общей площади, расположения несущих стен и других важных моментов.




































