Как выбрать подходящий профилированный лист
Итак, чтобы выбрать качественный профнастил, необходимо в первую очередь обратить внимание на требования к покрытию. Также важен цвет поверхности
Прошедшая окраску поверхность имеет более долгий срок эксплуатации и обеспечивает эстетичный вид. Цветовое решение должно вписаться в общую концепцию дизайна коттеджа и подходить к забору и двору
Также важен цвет поверхности. Прошедшая окраску поверхность имеет более долгий срок эксплуатации и обеспечивает эстетичный вид. Цветовое решение должно вписаться в общую концепцию дизайна коттеджа и подходить к забору и двору.
Ну и последнее, о чем не стоит забывать при выборе профилированного листа, это его толщина.
В случае если материал не укреплен, нельзя брать изделие с толщиной, ниже 0,45 мм.
Для длительного использования нужная максимальная толщина, она измеряется без доп. слоев защиты, то есть лишь внутреннего листа стали.
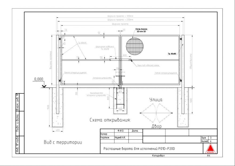
Изготовление распашных ворот

Изготовление распашных ворот
Для работы потребуются:
профлисты С8 или С10;
- стальные уголки 50х50 мм;
- трубы диаметром 80 мм;
- рулетка;
- оцинкованные саморезы;
- болгарка и сварочный аппарат;
- наждачная бумага;
антикоррозийный состав;
- петли;
ручной бур;
- щебень;
- цемент и песок.
Шаг 1. Изготовление рамы

Схема каркаса распашных ворот
Сначала составляют чертеж: рисуют раму ворот, продумывают расположение распорок, ширину и количество створок ворот, другие параметры. Стандартная рама представляет собой прямоугольник с 2-3 поперечными или диагональными распорками. Ширина одной створки варьируется от 1 до 2 м, высота ворот равняется 1,5-1,7 м. Эти параметры могут изменяться в зависимости от ширины проема, высоты забора и вида ворот. Для изготовления рамы необходима ровная площадка минимум 2х2 м. Из труб толщиной от 2 мм и диаметром 40 мм варят прямоугольный каркас.

Варианты распашных ворот
Из труб меньшего диаметра делают 2 или 3 укрепляющие перемычки. Они могут располагаться вертикально, горизонтально или по диагонали рамы. Если ворота одностворчатые, количество перемычек увеличивается. По углам рамы и в местах крепления распорок можно приварить отрезки металлических прутьев, чтобы придать конструкции дополнительную жесткость. Часто в целях упрочнения каркаса по внутреннему периметру рамы приваривают металлические уголки.

Изготовление рамы
Последними приваривают петли, после чего места сварки зачищают болгаркой, раму ошкуривают наждачной бумагой и грунтуют. Завершающий этап – окрашивание. Обшивать створки можно сразу или на завершающем этапе, когда каркас ворот будет установлен в проеме. Второй вариант более удобный, поскольку облегчает процесс монтажа.
Шаг 2. Установка столбов
Установка столбов
Участок под ворота расчищают и выравнивают, размечают положение опорных столбов. Столбы необходимо вкопать на треть их длины, при этом следует учитывать, что надземная часть опор должна быть примерно на полметра выше, чем полотно ворот. Диаметр ям не нужно делать слишком большим, достаточно 20 см. Подготавливают стойки: железные трубы диаметром 80 мм очищают от ржавчины, обрабатывают антикоррозийным составом, нижнюю часть обмазывают битумной смесью.

Установка столбов
На дно насыпают слой песка и щебня, опускают трубы и выставляют их по высоте и по вертикали. Чтобы они не сдвинулись во время бетонирования, по бокам устанавливают распорки из брусков или кирпич. Еще раз проверяют расположение стоек уровнем, затем забивают ямы щебнем на треть высоты и заливают до верха бетонным раствором. Распорки убирают через несколько часов, когда бетон немного упрочнится. Верх трубы обязательно закрывают заглушкой.

Установка столбов
Чтобы выложить кирпичные столбы, копают ямы квадратной формы, заполняют их битым кирпичом, камнем и крупным щебнем, посередине вставляют стальную трубу небольшого диаметра или арматурные пруты. Они должны возвышаться над грунтом на 30-40 см. Заливают яму бетоном, а когда он высохнет, застилают основание куском рубероида.

Столбы
К выступающей трубе приваривают еще одну на высоту столба и вокруг нее начинают выкладывать кирпич. На высоте 20 см от основания между кирпичами вмуровывают металлическую закладную со стороны проема, затем точно такую же крепят в верхней части столба. К этим закладным будут привариваться стойки ворот.
Шаг 3. Крепление и обшивка рамы
Возле каждого столба кладут толстые бруски или кирпичи, опирают на них раму и выставляют по уровню. По петлям на раме определяют места крепления петель на столбах и приваривают их. Убирают подпорки и проверяют движение створок. Если конструкция движется легко, не скрипит, ничего не цепляет, можно приступать к обшивке. Для этого снимают раму, укладывают ее на ровную поверхность и подрезают профлисты по размеру ворот. Укладывают лист от угла, вкручивая саморезы в углубление волны.

Распашные ворота
Закончив с полотном, прикручивают ручки, вставляют замок, крепят декоративные элементы. Готовые ворота снова навешивают на столбы и проверяют легкость хода. Чтобы укрепить конструкцию и защитить ее от ветровой нагрузки, несущие столбы рекомендуется соединить вверху металлическим профилем или балкой. На этом установка ворот считается завершенной.
Крепление профилированного листа
В простых конструкциях профнастил монтируется с внешней стороны распашных ворот. Более сложный и тяжелый, но красивый и аккуратный вариант предусматривает обшивку с двух сторон. Накладка листов производится с обязательным перекрыванием соседних полотен на одну общую волну.

Закрепление осуществляется при помощи специальных кровельных саморезов под шестигранную биту с шайбой и резиновой прокладкой. При этом вкручивание крепежа производится не только в раму по периметру, но и во все горизонтальные и диагональные перемычки.
Крестообразные перемычки.
Рекомендуемый шаг между крепежными метизами — 80-100 мм. Вместо саморезов можно использовать заклепки с возможностью установки с одной стороны при помощи специального инструмента. Это обойдется дороже, но позволить избежать коррозии крепежа и возможного образования ржавых потеков со временем.


Как сделать ворота с калиткой внутри из профнастила своими руками. Ворота из профнастила — 135 фото, как установить своими руками разные типы ворот
Есть о снования утверждать, что сделать ворота из профнастила своими руками не так уж и сложно. Речь идет о простой распашной конструкции, которая лишена излишеств в виде украшений, ковки и тому подобного. Разве чтоявляется обязательной. Такая работа не требует особой профессиональной подготовки и сложного оборудования.

Еще одно преимущество простых ворот из профнастила – относительно невысокая стоимость. Это недорогой материал, а выглядит он прилично, при правильном подборе цветов хорошо впишется в окружающую местность.

Конструкция ворот
Чертеж ворот с профнастилом демонстрирует крайнюю простоту и неприхотливость конструкции. Но простота эта кажущаяся, есть немало нюансов, которые надо учитывать, в противном случае ворота не будут выполнять свою функцию надлежащим образом.

Итак, ворота – это:
- две створки;
- две трубы для крепления створок;
- перекладина (в некоторых конструкциях);
- калитка (если есть);
- фиксаторы створок;
- поворотные петли;
- проушины под замок.
Створки
Створки для такого устройства, как, сваривают из профильной трубы (с прямоугольным поперечным сечением). Для большей надежности их укрепляют перемычками, которые могут быть:
- крестообразными;
- горизонтальными;
- закрепленными наискосок.

Когда створки достаточно большие, их дополнительно укрепляют (усиливают) одним из двух способов. Первый состоит в том, чтобы приварить по углам изнутри куски листового металла, вырезанные в форме равнобедренного прямоугольного треугольника. Второй похож, только вместо пластины приваривают под углом в 45° такую же трубу, из которой сделан каркас ворот.

Иногда на трубу наваривают неширокую металлическую полосу, чтобы было удобнее крепить профнастил.

Важно, чтобы в месте сварки труб строго выдерживался угол в 90°. Для контроля при сваривании необходимо использовать строительный угольник, либо специальное крепление
В противном случае створки будет невозможно ровно установить в воротах.

Перекладина
Укреплять створки приходится для того, чтобы они не провисали под осевой нагрузкой от собственного веса. Для этой проблемы есть более простое решение. Это перекладина, которая располагается в верхней части ворот, от столба до столба.

Прочность конструкции с перекладиной солидная, но тогда во двор не сможет заехать техника, которая выше ворот. И на этот случай есть решение: верхнюю часть рамы можно сделать съемной.

Подготовка составных частей ворот
Сварка – основной способ крепления для такой конструкции, как ворота из профнастила. Трубы для створок зарезаются на концах под углом 45°.

Такой подход считается профессиональным, но он требует определенной квалификации, а также наличия оснастки и инструмента. Это торцовочная пила по металлу, которая в домашней мастерской ни к чему. Можно отторцевать трубы и вручную, но надо работать очень аккуратно.
К опорным столбам и створкам привариваются элементы поворотных петель. Опять же, место под их крепление должно быть определено максимально точно, в противном случае неизбежен перекос. Лучше всего створку временно закрепить на трубе и размечать по месту. Проушины под висячий замок можно приварить уже тогда, когда ворота установлены.

Если изготавливаются ворота с калиткой, необходимо практически повторить все те же операции, которые описаны выше, от подготовки рамы и до установки замка.

Материалы
Опорные столбы – важная часть конструкции, монтаж ворот производится на них. Поэтому нужна крепкая профильная труба, к примеру, сечением 80х80х3 мм (последнее значение – толщина стенки), из углеродистой стали, сварная.

Длина каждого элемента равна сумме высоты ворот (около двух метров) и глубины вкапывания в грунт (до 1,2 метра). Трубы должны быть ровными, без ржавчины и других явных изъянов.

Для сборки створок также применяют профильные трубы, но с меньшим сечением. При расчете этого параметра надо учитывать потенциальную силу ветра и некоторые другие факторы.

Фотоотчет об изготовлении и установке ворот
Это один из вариантов того, как можно сделать ворота из профнастила своими руками. Технология не лучшая, но и не худшая: все функционирует без проблем на протяжении уже шести лет.
К установленным столбам 80-80 мм приварены петли, ответные части приварены на требуемом расстоянии на вертикальных частях стоек из трубы 40*40 мм — на правой и левой. Стойки навешиваем на петли на столбе, подкладываем между ними и столбами нужной толщины прослойку и фиксируем струбциной.
Навешиваем стойки на приваренные на столбах петли
Отмеряем требуемую высоту и обрезаем излишки, сверху к стойкам, не к столбам, привариваем поперечину из той же трубы 40*40 мм
Качество сварки на этом этапе неважно. Мы пока прихватываем детали, не заботясь о тщательности наложения шва — его потом доведем до нормы. Главное чтобы все было ровно и держалось вместе
Потому точками прихватываем в нескольких местах
Главное чтобы все было ровно и держалось вместе. Потому точками прихватываем в нескольких местах.
К стойкам воротин приварена поперечина
Точно также прихватываем трубу по низу.
Привариваем нижнюю трубу
Находим середину поперечных балок. От середины в обе стороны откладываем по 3 мм. Делаем четкие отметки. Замеряем расстояние между верхней и нижней балкой, отрезаем два отрезка, привариваем по отметкам (между двумя вертикальными трубами должен остаться зазор в 6 мм).
По середине с зазором в 6 мм привариваем две вертикальные трубы
Замеряем расстояние между двумя стойками одной половины ворот. Они должны быть одинаковыми, но лучше измерять отдельно. Отрезаете трубы нужной длины и прихватываете их на нужной высоте. Если требуется больше поперечин — устанавливаете и их.
Приваренные поперечины для усиления жесткости
По отмеченному центру болгаркой вверху и внизу делаем сквозные пропилы, разделяя ворота на две половины. Так очень просто мы получили ворота, которые будут открываться и закрываться без особых проблем.
Разделенные половинки ворот
Каркас створок ворот готов. Его снимаем, укладываем на ровную горизонтальную поверхность и хорошо провариваем швы
Вот тут уже качество сварки важно, следим за наполненностью ванны, стараемся не прожечь дыры. Готовые швы зачищаем, грунтуем, красим
Уложив створку на ровную горизонтальную поверхность провариваем все швы
Приступаем к сборке опоры для крепления профильного листа. Для уменьшения парусности его разрезали на две части, так что лист не цельный, а резаный. Для этого используем профилированную трубу 20*20 мм. Ее нарезаем на отрезки нужной длинны, так, чтобы можно было закрепить по внутреннему периметру.
Нарезаем трубу 20*20 мм и прикручиваем по внутреннему периметру
Выставляем их в одной плоскости с наружной частью — прикручиваться лист будет изнутри. Крепим на саморезы, предварительно просверлив отверстия требуемого диаметра.
Как крепить планки для профлиста
Так выглядит готовый каркас створки ворот
Готовый каркас красим — внутри светло-серой краской, снаружи — красно-коричневой, в тон окраске профнастила. Оставляем сохнуть.
Окрашенный каркас
Приступаем к монтажу профлиста на ворота. Его нарезают чуть меньшего размера, чем основная рама — по периметру на 2-3 мм должен быть отступ. Укладывают на подготовленные опоры и крепят изнутри по периметру на саморезы.
Монтаж профлиста на ворота
Можно брать специальные, со шляпками и прокладками, но посадили на обычные.
Для экономии использовали обычные саморезы по металлу
Можно сказать, что ворота готовы.
Практически готовы
Осталось установить запоры. Можно, конечно врезать замок и ручку, но качество недорогих очень низкое, а брать дорогие — на данный момент непозволительная роскошь. Потому из остатков труб и арматуры сварены засовы. Они точно работают при любых условиях.
Самодельные засовы
Один (верхний) посажен на саморезы с ответной частью на створки, два нижних прикреплены к стойкам. В грунте в нужных местах пробурены небольшие лунки, в которых забетонированы отрезки круглых труб, диаметр которых больше диаметра стержня. Калитка сделана по той же методе, только в нее врезан замок.
Готовые ворота из профнастила своими руками
При такой технологии изготовления створки ворот гарантированно открываются и закрываются. Если и были некоторые перекосы при установке столбов, они учитываются. При пошаговом изложении весь процесс не выглядит сложным, да так оно и есть. Если варить все части отдельно, геометрия должна быть идеальной, да еще приходится следить за тем, чтобы трубу при сварке не повело. Несколько разных технологий изготовления ворот из профнастила смотрите в следующем разделе, где собраны видео уроки.
Из профлиста можно сделать откатные ворота и оснастить их автоматикой.
2 этап – Чертеж ворот из профнастила
Схема или чертеж распашных ворот необходим для упрощения расчета количества материала и оценки жесткости конструкции.
Два способа сделать распашные ворота:
с одной большой створкой (одностворчатые). Недостатком способа можно считать то, что нужно много места для маневра ворот, а также их большую парусность. Уменьшение парусности за счет дополнительных деталей каркаса приводит к увеличению нагрузки на петли, что в свою очередь приводит к перекосу створки. Этот способ годится только для ворот с небольшой шириной проема или для устройства калитки;
с двумя створками (двухстворчатые). Исключаются все описанные выше недостатки, но возрастает стоимость изготовления за счет добавления петель и элементов каркаса. Возможно устройство с одинаковыми или с разными по ширине створками. У двустворчатых распашных ворот есть преимущество, они более устойчивы к ветровой нагрузке.
Схема распашных ворот из профнастила должна содержать:
Схема распашных ворот из профнастилаСхема распашных ворот из профнастила с размерами
общую ширину проема. Понадобится в случае необходимости сделать маневр – при увеличении зазоров или изменении размеров фурнитуры;
ширину каждой створки;
количество, ширину стоек и глубину укапывания стоек;
конфигурацию каркаса с указанием ширины составляющих его элементов;
месторасположение и ширину калитки. Это важный аспект. Изготовление калитки из профнастила одновременно с каркасом для ворот позволит сократить срок реализации проекта. А если калитка расположена внутри каркаса ворот, чертеж позволит учесть место ее расположения при разметке и нарезке заготовок;
место установки петель;
место и способ установки замка;
место расположения внутреннего фиксатора двери (вертикального шпингалета).
Фиксатор створки ворот (вертикальный шпингалет)Фиксатор распашных ворот из профнастила
На чертеж ворот из профнастила наносится в обязательном порядке элементы усиления каркаса. Именно визуализация будущих ворот, позволяет понять, какой из элементов использовать и определить место его установки с учетом ветровой нагрузки.
Способы усилить ворота из профнастила:
1. наварить уголок для жесткости
Такой способ подходит, если ширина створок незначительная (до 1 500 мм, каждая). Уголок может быть сплошным (косынка) или в виде угловой перемычки (распорка). Чем шире уголок или чем ближе к центру установлена перемычка, тем жестче будет каркас ворот.
Усиление каркаса распашных ворот из профнастила уголкамиУсиление каркаса ворот из профнастила косынками
2. сделать раму внутри каркаса или над ним
Сварка рамы внутри каркаса воротВ первом случае заготовки меньшего сечения помещается в ячейки каркаса, и прихватываются сваркой с шагом в 200-300 мм.
Сплошной шов не допускается, чтобы исключить деформацию металла вследствие нагревания (чтобы не повело и не покрутило).
Сварка рамы снаружи каркаса воротВо втором, труба меньшего сечения наваривается над основным каркасом. На рисунке показан вид сверху такого усиления.
3. установить поперечные или диагональные перемычки
Здесь важно правильно устанавливать перемычки. Если калитка из профнастила имеет незначительную парусность и для неё достаточно установить одну поперечную перемычку перпендикулярно длинным элементам каркаса, то с воротами дело обстоит сложнее
В этом случае разумнее использовать диагональную перемычку.
Способы установки перемычки на ворота из профнастила показаны на фото.
Варианты установки перемычек (ребра жесткости) на ворота из профнастила
Ребра жесткости ворот – варианты расположения:
а) Несмотря на кажущуюся простоту, этот вариант достаточно продуманный, поскольку гарантирует целостность створок ворот. С одной стороны, он будет удерживаться петлями, сверху исключается возможность деформации благодаря усилению углов. Снизу его удержат горизонтальные фиксаторы (шпингалеты);
б) Это самый экономичный из представленных вариантов, но он создает усиление только посредине каркаса. Единственно достоинство, в том, что он дает возможность установить замок на перемычку.
При этом варианты «а» и «б» нельзя считать надежными при ширине створки ворот более 1 500 мм.
в) недостаток этого варианта в слабом усилении верхних внутренних углов. Сильный ветер может деформировать створку;
г) в этом случае отсутствует усиление левого внутреннего угла;
д) в этом случае отсутствует усиление обоих внутренних углов;
е) идеальный вариант. Места врезки замка, установки петель, нижних фиксаторов и верхние углы усилены. Этот способ исключает кручение каркаса.
Совет. Чем шире створка, тем сильнее усиливают каркас.
Определение размеров ворот
Принятая ширина распашных конструкций зависит от габаритных размеров автомобиля, который будет через них проезжать. К этому размеру необходимо прибавить 1200-1500 мм, чтобы упростить возможность въезда с поворотом со стороны улицы, или 800-900 мм, если перед воротами есть прямой подъездной участок дороги.
Кроме этого нужно учитывать ширину профилированного листа, что позволит сократить количество обрезков и металлических отходов при изготовлении ворот до минимума.
Габаритные размеры большинства моделей легковых автомобилей не превышают 2000 мм, в среднем это 1700-1900 мм. На основании этого можно сказать, что оптимальная ширина распашных ворот находится в пределах 4000-4500 мм с учетом габаритных размеров опорных столбов. Удобная для прохода людей ширина калитки обычно принимается равной 1200 мм.
Высота распашных ворот зависит от длины профилированного листа, которая в стандартном исполнении равна 2000 мм. При добавлении к этой величине зазора между створками и землей получаем высоту в пределах 2150-2250 мм. Приподнятое положение над поверхностью земли необходимо для возможности открытия при наличии наледи или снега зимой.
Чертеж ворот из профнастила.
Это интересно: Деревянные ворота: разбираем обстоятельно
Отделка
Под отделкой обычно понимается зашивка полотна створок листами профнастила, а также грунтовка антикоррозийным грунтом и последующая покраска эмалью в нужный цвет. Перед грунтовкой и покраской нужно обязательно зачистить все сварные швы и ржавчину до металла, болгаркой с зачистным кругом. Обезжириваем раму и каркас растворителем и грунтуем антикоррозийной грунтовкой, сначала места сварки, а после их высыхания, створки полностью.
Грунтовка и покраска каркаса ворот
После высыхания слоя грунтовки можно покрыть створки ворот алкидной эмалью в два слоя с промежуточной сушкой между ними. Ворота почти готовы, остаётся повесить створки на петли и прикрутить профнастил. Прикручиваем обрезанные по размерам листы профнастила к каркасу саморезами с помощью шуруповёрта.
А также в отделку включается добавление ажурных кованных элементов на фасад ворот или на верхнюю часть, примеры таких работ можно увидеть в галере выше. Стоит добавлять такие элементы или нет каждый решает сам, это дело вкуса.
Замок на ворота
Замок на ворота можно приобрести любой и также как при монтаже в обычной двери присутствуют некоторые особенности. При монтаже замка в зависимости от его вида выполняются следующие условия:
Навесной. Для навесного замка на ворота и калитку следует предусмотрительно сделать петли ещё на этапе сборки каркаса.
- Накладной монтируется на поперечной перемычке, прикручивается к раме.
- Врезной. Для этого типа замка предварительно вырезается карман в противоположной от завесов поперечной трубе створки.
Нижние фиксаторы створок нужны для равномерного распределения ветровой нагрузки на ворота.
Видео: изготовление ворот из металлопрофиля своими руками
При большом наличии желания и приложении усилий в нужном направлении, постройка ворот достойного качества, является вполне выполнимой задачей для человека с минимальной технической подготовкой.
Обзор видов
В зависимости от особенностей установки заборы из профлиста могут быть разных видов, например, с откатными (или с раздвижными) воротами и с распашными воротами.
А также ограждения из указанного материала могут различаться по расположению лагов и перемычек, например, заборы со съемными или капитальными перемычками.
Далее будет приведена более подробная характеристика каждого вида.
По конструкции
Заборы с откатными или раздвижными воротами из профлиста. Они представляют собой ограждения с открывающейся частью, которая передвигается вдоль забора. Основным достоинством такого типа является экономия пространства. Особенно актуальна такая характеристика для земельных участков небольшой площади.
Но следует учитывать, что установка подобной конструкции отнимет значительное количество времени и средств. Забор этого вида должен иметь особенно надежную опору, поэтому перед его монтажом рекомендуется залить прочный фундамент. Это позволит равномерно распределять нагрузку, которую создает подвижная часть, на забор.
Заборы с распашными воротами. Эта разновидность является одной из самых популярных, она проста в установке, не требует значительных финансовых затрат, и поставить ее можно самостоятельно. К тому же подобная конструкция является довольно прочной. Забор с распашными воротами из профлиста представляет собой ограждение, двери которого открываются внутрь или наружу.
Такая конструкция не всегда удобна в использовании – например, зимой, когда выпадает большое количество снега, открыть створки будет чрезвычайно неудобно, ведь придется сначала расчистить снежные завалы. Помимо этого, при ветреной погоде необходимо быть особенно внимательным при закрытии ворот. Нередки случаи, когда внезапно распахнувшимися створками повреждались рядом стоящие транспортные средства.
Чтобы не тратить физических усилий для приведения в действие механизмов ворот, их открытие и закрытие можно автоматизировать. Необходимые для этого комплектующие приобретаются в крупных строительных магазинах.
По расположению перемычек
Съемные перемычки. Они используются для того, чтобы укрепить забор, придать ему дополнительную устойчивость, не нарушая внешний вид. Даже самая устойчивая конструкция не защищена от влияния на нее подвижности грунта. Вследствие этого забор начинает наклоняться и крениться набок. Съемная перемычка, устанавливаемая между несущими столбами ворот, предотвращает нежелательные микросдвиги. За счет того что удерживается она болтами, которые при необходимости можно с легкостью демонтировать, проблемы проезда грузового или другого крупногабаритного транспорта на территорию участка, не возникнет.
Капитальные перемычки. Устанавливаются они также между стойками ворот забора. В отличие от съемных перемычек, снять их без повреждения ограждениях не представляется возможным. Однако за счет более прочного соединения с конструкцией они выполняют функцию поддержки и придания устойчивости забору наилучшим образом. Такие перемычки не ослабнут и не расшатаются с течением времени.
Обзор технических характеристик профлиста
Профлист – это гофрированная тонкая сталь с оцинкованным покрытием для защиты. Дополнительно для изменения цвета наносится слой из полимерного состава. В продаже можно увидеть материал 3 классов: C. CH. H. Различия заключены в высоте волны, прочности, толщине полотна и массе.
Для создания ворот можно использовать любой тип профнастила, но все, же обычно используют дополнительно усиленные.
К преимуществам устройства заборов из профилированного листа калитки, и ворот относят следующее:
- легкость;
- высокая жесткость;
- простой раскрой;
- быстрота сборки конструкции;
- длительной срок эксплуатации;
- изделия из этого материала красиво выглядят в течение долгого времени;
- возможность его менять.
Из минусов можно выделить слабую мех. устойчивость к ударам и иным механическим воздействиям. Еще один недостаток – металл пропускает шум. А малый вес листков вынуждает прибегать к усилению и утяжелению каркасной конструкции с опорными столбами.





































